Bộ bồn cầu TOTO CW553/TC384CVK/WH172A/MB170P – Giải pháp vệ sinh sang trọng, hiện đại cho mọi không gian
TOTO CW553/TC384CVK/WH172A/MB170P là bộ sản phẩm bồn cầu treo tường cao cấp kết hợp két âm tường và phụ kiện đồng bộ, mang đến sự tiện nghi tối đa, tiết kiệm diện tích và nâng cao thẩm mỹ phòng tắm. Sản phẩm được sản xuất theo tiêu chuẩn chất lượng Nhật Bản, kết hợp thiết kế tinh tế và công nghệ tiên tiến, đáp ứng nhu cầu của những không gian sống hiện đại.
1. Thiết kế tối ưu – Tiết kiệm diện tích, nâng tầm không gian
-
Bàn cầu treo tường CW553: Giúp sàn phòng tắm thông thoáng, dễ vệ sinh và mang lại cảm giác rộng rãi.
-
Gam màu trắng trang nhã: Dễ dàng phối hợp với nhiều phong cách nội thất khác nhau.
-
Bề mặt men CEFIONTECT: Công nghệ men siêu nhẵn độc quyền của TOTO giúp chống bám bẩn, hạn chế vi khuẩn phát triển.
-
Két âm tường WH172A: Lắp đặt gọn gàng, ẩn toàn bộ hệ thống xả, tạo không gian gọn gàng, tinh tế.
2. Bộ sản phẩm đồng bộ – Hoạt động hiệu quả
Bộ sản phẩm gồm:
-
Bồn cầu CW553 – Thiết kế treo tường nhỏ gọn, chắc chắn.
-
Nắp đóng êm TC384CVK – Cơ chế giảm chấn, đóng nhẹ nhàng, không gây tiếng ồn.
-
Két âm tường WH172A – Hệ thống xả âm tường tiết kiệm diện tích, dễ bảo trì.
-
Mặt nhấn MB170P – Mặt nhấn đôi tiện dụng, thiết kế tinh tế, bền bỉ.
3. Công nghệ tiên tiến – Vận hành mạnh mẽ
-
Hệ thống xả Tornado Flush: Tạo dòng nước xoáy mạnh mẽ, cuốn trôi mọi vết bẩn.
-
Tiết kiệm nước: Chế độ xả đôi 3L/4.5L, giảm lượng nước tiêu thụ mà vẫn đảm bảo hiệu quả làm sạch.
-
Men CEFIONTECT: Giữ bề mặt sứ luôn sáng bóng, sạch sẽ lâu hơn.
-
Cơ chế đóng êm: Hạn chế tiếng ồn, tăng tuổi thọ của nắp bồn cầu.
4. Độ bền cao – An toàn tuyệt đối
-
Chịu tải trọng lớn: Đáp ứng nhu cầu sử dụng từ gia đình đến công trình thương mại.
-
Chất liệu sứ cao cấp: Không chứa tạp chất độc hại, an toàn cho sức khỏe.
-
Phụ kiện bền bỉ: Mặt nhấn và két âm tường được làm từ vật liệu cao cấp, chống ăn mòn.
-
Bảo trì dễ dàng: Thiết kế két âm tường giúp việc kiểm tra và sửa chữa thuận tiện.
5. Thông số kỹ thuật
-
Mã sản phẩm: CW553/TC384CVK/WH172A/MB170P
-
Kiểu dáng: Bàn cầu treo tường
-
Hệ thống xả: Tornado Flush
-
Chế độ xả: 2 chế độ (3L/4.5L)
-
Công nghệ men: CEFIONTECT chống bám bẩn
-
Màu sắc: Trắng (bàn cầu)
-
Xuất xứ: TOTO chính hãng – tiêu chuẩn Nhật Bản
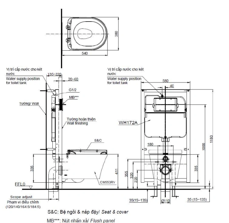
6. Bản vẽ kỹ thuật 2D bồn cầu treo tường CW553/TC384CVK/WH172A/MB170P

7. Ưu điểm nổi bật
-
Tiết kiệm diện tích: Phù hợp với phòng tắm nhỏ.
-
Tăng tính thẩm mỹ: Thiết kế gọn gàng, hiện đại.
-
Tiết kiệm nước: Giảm chi phí vận hành lâu dài.
-
Vệ sinh dễ dàng: Hạn chế vết bẩn bám dính.
8. Lý do nên chọn
Bộ TOTO CW553/TC384CVK/WH172A/MB170P không chỉ đáp ứng nhu cầu cơ bản mà còn mang lại trải nghiệm sang trọng, tiện nghi và bền bỉ. Đây là lựa chọn lý tưởng cho các căn hộ cao cấp, khách sạn, resort và những gia đình yêu thích không gian phòng tắm gọn gàng, hiện đại.



