Bộ bàn cầu TOTO CW812RA/WH172A/TC811SJ/MB174P#SS – Hoàn hảo cho không gian vệ sinh hiện đại
TOTO CW812RA/WH172A/TC811SJ/MB174P#SS là bộ bàn cầu treo tường cao cấp được TOTO thiết kế với sự tinh tế và tỉ mỉ, kết hợp hài hòa giữa công nghệ tiên tiến và phong cách hiện đại. Sản phẩm không chỉ mang đến trải nghiệm vệ sinh tiện nghi, sạch sẽ mà còn góp phần nâng tầm thẩm mỹ cho phòng tắm, đặc biệt phù hợp với các căn hộ cao cấp, khách sạn, resort và công trình sang trọng.
1. Thiết kế tinh gọn – Nâng cao tính thẩm mỹ
-
Bàn cầu treo tường CW812RA giúp tiết kiệm diện tích, tạo cảm giác không gian rộng rãi và thông thoáng hơn.
-
Két âm tường WH172A được giấu khéo léo bên trong tường, giữ cho phòng tắm gọn gàng và tối giản.
-
Gam màu trắng trang nhã kết hợp cùng mặt nhấn inox MB174P#SS mang lại vẻ đẹp hiện đại, sang trọng.
-
Nắp đóng êm TC811SJ tích hợp công nghệ giảm chấn, đóng mở nhẹ nhàng, không gây tiếng ồn.
2. Công nghệ tiên tiến – Vệ sinh vượt trội
-
Hệ thống xả Tornado Flush tạo ra dòng nước xoáy mạnh mẽ, cuốn trôi mọi vết bẩn nhanh chóng.
-
Men sứ CEFIONTECT siêu nhẵn, chống bám bẩn, giúp hạn chế vi khuẩn và nấm mốc.
-
Chế độ xả đôi 3L/4.5L tiết kiệm nước nhưng vẫn đảm bảo hiệu quả làm sạch tối ưu.
3. Bộ sản phẩm đồng bộ – Hoạt động hoàn hảo
Bộ TOTO CW812RA/WH172A/TC811SJ/MB174P#SS bao gồm:
-
Bàn cầu treo tường CW812RA – Thiết kế chắc chắn, nhỏ gọn.
-
Nắp đóng êm TC811SJ – Giảm chấn, chống va đập.
-
Két âm tường WH172A – Tối ưu không gian, dễ bảo trì.
-
Mặt nhấn MB174P#SS – Chất liệu inox bền đẹp, chống gỉ sét.
4. Độ bền và an toàn cao
-
Chất liệu sứ cao cấp: Bền bỉ, an toàn cho sức khỏe, không chứa chất độc hại.
-
Kết cấu treo tường chắc chắn: Đạt tiêu chuẩn chịu lực cao, phù hợp với mọi công trình.
-
Mặt nhấn inox chống ăn mòn: Duy trì vẻ đẹp lâu dài, dễ lau chùi.
5. Thông số kỹ thuật
-
Mã sản phẩm: CW812RA/WH172A/TC811SJ/MB174P#SS
-
Kiểu dáng: Bàn cầu treo tường
-
Hệ thống xả: Tornado Flush
-
Chế độ xả: 2 chế độ (3L/4.5L)
-
Công nghệ men: CEFIONTECT chống bám bẩn
-
Màu sắc: Trắng – Inox mờ
-
Xuất xứ: TOTO chính hãng – tiêu chuẩn Nhật Bản
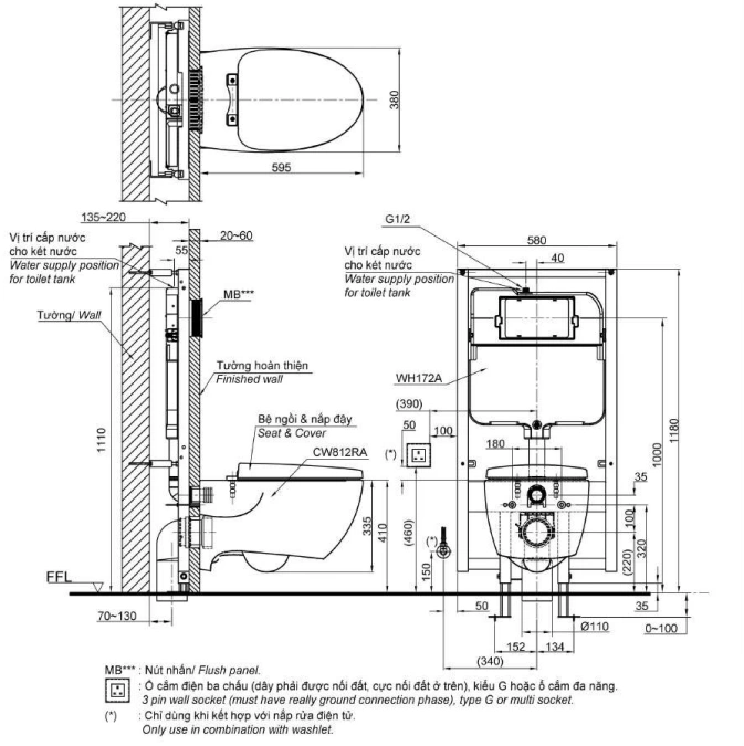
6. Bản vẽ kỹ thuật bồn cầu treo tường CW812RA/WH172A/TC811SJ/MB174P#SS

7. Ưu điểm vượt trội
-
Tiết kiệm diện tích: Lý tưởng cho phòng tắm nhỏ và vừa.
-
Tính thẩm mỹ cao: Phù hợp với phong cách nội thất hiện đại, sang trọng.
-
Tiết kiệm nước: Giảm chi phí vận hành lâu dài.
-
Dễ bảo trì: Thiết kế két âm tường có cửa bảo trì tiện lợi.
8. Lý do nên lựa chọn
Bộ sản phẩm TOTO CW812RA/WH172A/TC811SJ/MB174P#SS không chỉ đáp ứng nhu cầu vệ sinh hàng ngày mà còn nâng cao trải nghiệm sống nhờ thiết kế tinh tế, chất liệu bền bỉ và công nghệ tiên tiến. Đây là giải pháp hoàn hảo cho những ai mong muốn một phòng tắm vừa tiện nghi vừa sang trọng.



