TOTO CW812REA/TCF4911EZ/WH172AAT/TCA464/MB174P#SS – Bồn cầu treo tường thông minh, tối ưu không gian sống
1. Giới thiệu sản phẩm
Bộ sản phẩm TOTO CW812REA/TCF4911EZ/WH172AAT/TCA464/MB174P#SS là một trong những giải pháp vệ sinh cao cấp, kết hợp hài hòa giữa thiết kế treo tường hiện đại, công nghệ thông minh tiên tiến và độ bền vượt trội. Với bồn cầu treo tường CW812REA, két nước âm tường WH172AAT, nắp rửa điện tử TCF4911EZ, khung treo MB174P#SS chắc chắn và nút nhấn TCA464 tinh tế, sản phẩm này mang đến cho người dùng một trải nghiệm vệ sinh hoàn toàn mới – sang trọng, gọn gàng và tiện nghi.
2. Cấu tạo chi tiết bộ sản phẩm
-
CW812REA: Bồn cầu treo tường cao cấp, thiết kế gọn gàng, dễ vệ sinh.
-
TCF4911EZ: Nắp rửa điện tử WASHLET thông minh, tích hợp nhiều tính năng tiện ích.
-
WH172AAT: Két nước âm tường giúp tối ưu diện tích và tăng tính thẩm mỹ.
-
TCA464: Nút nhấn đôi nhỏ gọn, sang trọng, thao tác dễ dàng.
-
MB174P#SS: Khung treo thép không gỉ bền chắc, chịu lực lớn.
3. Thiết kế sang trọng, tối ưu diện tích
Bồn cầu CW812REA với kiểu dáng treo tường giúp tiết kiệm không gian tối đa, mang đến sự gọn gàng cho phòng tắm. Két nước WH172AAT được giấu âm tường, chỉ để lộ bồn cầu và nút nhấn, giúp không gian trở nên tinh tế và hiện đại. Đây là lựa chọn hoàn hảo cho những căn hộ, biệt thự, khách sạn cao cấp muốn tối ưu diện tích mà vẫn đảm bảo tính thẩm mỹ.
4. Nắp rửa điện tử TCF4911EZ – Công nghệ Nhật Bản tiên tiến
Nắp rửa thông minh TCF4911EZ mang lại trải nghiệm vệ sinh vượt trội với loạt tính năng hiện đại:
-
Rửa trước và sau tự động với tia nước êm ái, điều chỉnh nhiệt độ và áp lực linh hoạt.
-
Sưởi ấm bệ ngồi mang lại cảm giác thoải mái trong mọi điều kiện thời tiết.
-
Khử mùi tự động giúp không gian phòng tắm luôn sạch sẽ và trong lành.
-
Sấy khô bằng khí ấm, hạn chế dùng giấy, bảo vệ môi trường.
-
Chế độ tiết kiệm năng lượng, thân thiện với môi trường và giảm chi phí điện nước.
5. Két nước âm tường WH172AAT – Giải pháp gọn gàng
Két nước WH172AAT được thiết kế âm tường, không chỉ tiết kiệm không gian mà còn nâng cao tính thẩm mỹ. Chất liệu nhựa cao cấp, khả năng chống rò rỉ và dễ dàng bảo trì, đây là lựa chọn bền bỉ cho nhiều công trình hiện đại.
6. Khung treo MB174P#SS – Vững chắc và an toàn
Khung treo MB174P#SS được làm từ thép không gỉ, mang lại độ bền và khả năng chịu lực cao. Thiết kế thông minh giúp quá trình lắp đặt nhanh chóng và đảm bảo an toàn tuyệt đối cho người sử dụng.
7. Nút nhấn TCA464 – Nhỏ gọn và tinh tế
TCA464 là bộ nút nhấn đôi với thiết kế tinh giản, sang trọng. Người dùng có thể lựa chọn chế độ xả đại hoặc tiểu, giúp tiết kiệm nước tối đa mà vẫn duy trì hiệu quả xả sạch vượt trội.
8. Ưu điểm vượt trội
-
Tiết kiệm diện tích, tối ưu không gian phòng tắm.
-
Công nghệ WASHLET tiên tiến, mang lại trải nghiệm vệ sinh tiện nghi.
-
Thiết kế sang trọng, hiện đại, phù hợp nhiều phong cách nội thất.
-
Dễ vệ sinh, bảo trì, nâng cao tuổi thọ sản phẩm.
-
Tiết kiệm nước và năng lượng, thân thiện với môi trường.
9. Ứng dụng thực tế
Bộ sản phẩm CW812REA/TCF4911EZ/WH172AAT/TCA464/MB174P#SS phù hợp với:
-
Căn hộ, chung cư hiện đại cần giải pháp tiết kiệm diện tích.
-
Biệt thự, nhà phố cao cấp yêu cầu sự sang trọng và tinh tế.
-
Khách sạn, resort 4-5 sao cần nâng tầm trải nghiệm khách hàng.
-
Trung tâm thương mại, văn phòng cao cấp muốn tạo dấu ấn chuyên nghiệp.
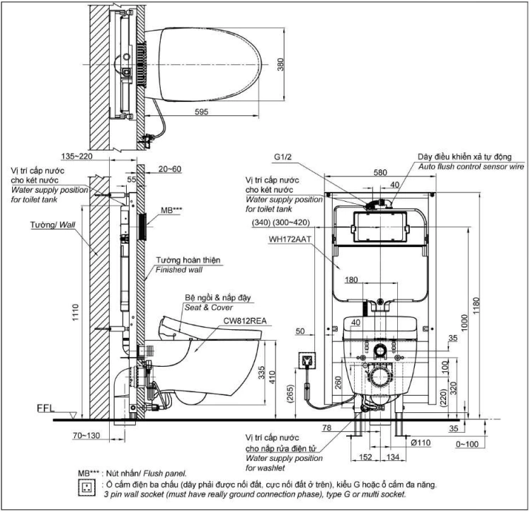
10. Bản vẽ kỹ thuật 2D bồn cầu treo tường CW812REA/TCF4911EZ/WH172AAT/TCA464/MB174P#SS

11. Kết luận
Với sự kết hợp của bồn cầu treo tường CW812REA, nắp rửa điện tử TCF4911EZ, két nước âm tường WH172AAT, nút nhấn TCA464 và khung treo MB174P#SS, sản phẩm không chỉ mang lại sự tiện nghi mà còn khẳng định phong cách sống hiện đại và đẳng cấp. Đây là lựa chọn tối ưu cho những ai mong muốn sự hoàn hảo trong từng chi tiết.



