Lavabo TOTO LT953 – Giải pháp tinh tế cho phòng tắm hiện đại
1. Giới thiệu sản phẩm
Lavabo TOTO LT953 là mẫu chậu rửa đặt bàn cao cấp thuộc bộ sưu tập thiết bị vệ sinh TOTO Nhật Bản. Với thiết kế tinh giản, hiện đại, sản phẩm phù hợp cho nhiều không gian từ gia đình đến công trình cao cấp. Được sản xuất từ chất liệu sứ cao cấp, phủ men chống bám bẩn tiên tiến, LT953 mang đến sự tiện lợi, bền bỉ và vẻ đẹp sang trọng vượt thời gian.
2. Thiết kế sang trọng, hiện đại
-
Kiểu dáng hình chữ nhật thanh thoát, cân đối và tối giản.
-
Thiết kế đặt bàn giúp dễ dàng kết hợp với nhiều loại mặt đá, tủ lavabo hoặc bàn gỗ chống ẩm.
-
Màu trắng trang nhã, mang lại sự tinh khiết và tạo điểm nhấn cho phòng tắm.
-
Lòng chậu sâu và rộng, giúp hạn chế tình trạng nước bắn ra ngoài khi sử dụng.
3. Chất liệu sứ cao cấp & công nghệ men hiện đại
-
Sứ vệ sinh TOTO cao cấp: Được nung ở nhiệt độ cao, đảm bảo độ cứng chắc và tuổi thọ lâu dài.
-
Công nghệ men CEFIONTECT: Lớp men siêu mịn chống bám bẩn, chống ố vàng, ngăn vi khuẩn và dễ vệ sinh.
-
Khả năng chống nứt nẻ, chống ẩm mốc: Đảm bảo sản phẩm luôn bền đẹp trong điều kiện môi trường ẩm ướt.
-
Dễ dàng vệ sinh: Chỉ cần lau chùi nhẹ là lavabo trở lại sáng bóng như mới.
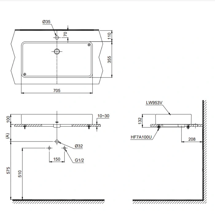
4. Thông số kỹ thuật (tham khảo)
-
Mã sản phẩm: LT953
-
Thương hiệu: TOTO Nhật Bản
-
Loại chậu: Lavabo đặt bàn
-
Kích thước: ~ 600 x 400 x 150 mm (có thể thay đổi tùy phiên bản)
-
Màu sắc: Trắng
-
Chất liệu: Sứ cao cấp phủ men chống bám bẩn CEFIONTECT
-
Kiểu lắp đặt: Đặt nổi trên bàn
5. Bản vẽ kỹ thuật 2D lavabo Đặt Bàn LT953

6. Ưu điểm nổi bật
-
Thiết kế tinh tế: Đường nét đơn giản nhưng hiện đại, phù hợp với nhiều phong cách nội thất.
-
Độ bền vượt trội: Chất liệu sứ cao cấp, chịu lực tốt, chống nứt vỡ.
-
Công nghệ men chống bám bẩn: Giúp duy trì sự sáng bóng và sạch sẽ lâu dài.
-
Dễ dàng kết hợp: Phù hợp với nhiều loại vòi lavabo và phụ kiện khác.
-
Thương hiệu uy tín: Sản phẩm chính hãng TOTO Nhật Bản, cam kết chất lượng.
7. Ứng dụng thực tế
-
Gia đình: Mang lại sự tiện nghi và thẩm mỹ cho phòng tắm hiện đại.
-
Khách sạn – resort: Đáp ứng tiêu chuẩn sang trọng và tiện nghi.
-
Căn hộ cao cấp: Tạo điểm nhấn khác biệt cho không gian sống.
-
Trung tâm thương mại – công trình công cộng: Đảm bảo chất lượng, độ bền và thẩm mỹ lâu dài.
8. Kết luận
Lavabo TOTO LT953 là sự lựa chọn hoàn hảo cho những ai mong muốn một sản phẩm vừa có tính thẩm mỹ cao, vừa bền bỉ và tiện dụng. Với thiết kế tinh tế, chất liệu sứ cao cấp và công nghệ men chống bám bẩn, LT953 không chỉ đáp ứng nhu cầu sử dụng hàng ngày mà còn góp phần nâng tầm đẳng cấp cho phòng tắm.



