Vòi Lavabo Cảm Ứng TOTO TLE25007V
1. Giới thiệu sản phẩm
TOTO TLE25007V là mẫu vòi lavabo cảm ứng thông minh, mang thiết kế tối giản, hiện đại và tiện nghi. Với công nghệ cảm biến hồng ngoại tiên tiến, sản phẩm giúp tự động cấp/ngắt nước, mang lại sự thoải mái khi sử dụng, đồng thời đảm bảo tiết kiệm và vệ sinh tối đa.
2. Đặc điểm nổi bật
-
Công nghệ cảm biến hồng ngoại hiện đại, không cần chạm tay.
-
Thiết kế tinh gọn, dễ kết hợp với nhiều loại lavabo.
-
Lớp mạ Nickel – Crom cao cấp, sáng bóng, chống bong tróc và ăn mòn.
-
Chất liệu đồng thau bền bỉ, an toàn cho sức khỏe.
-
Vận hành bằng pin, không cần điện trực tiếp, an toàn và tiết kiệm năng lượng.
3. Lợi ích khi sử dụng
-
Đảm bảo vệ sinh tối ưu, hạn chế tiếp xúc trực tiếp.
-
Tiết kiệm nước hiệu quả nhờ chế độ tự ngắt thông minh.
-
Nâng tầm thẩm mỹ, mang lại vẻ đẹp sang trọng, hiện đại cho phòng tắm.
-
Độ bền cao, giảm chi phí bảo dưỡng và thay thế.
4. Ứng dụng
Thích hợp cho gia đình, khách sạn, nhà hàng, resort, trung tâm thương mại, bệnh viện và các công trình công cộng cần sự hiện đại, vệ sinh và tiết kiệm năng lượng.
5. Thông số kỹ thuật
-
Mã sản phẩm: TLE25007V
-
Loại sản phẩm: Vòi lavabo cảm ứng
-
Chất liệu: Đồng thau cao cấp
-
Lớp mạ: Nickel – Crom bền đẹp
-
Nguồn điện: Pin (không cần điện trực tiếp)
-
Áp lực nước: 0.05MPa ~ 0.75MPa
-
Kiểu xả: Cảm biến hồng ngoại tự động
-
Thương hiệu: TOTO
-
Xuất xứ: Việt Nam
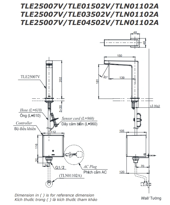
6. Bản vẽ kỹ thuật 2D vòi lavabo cảm ứng TLE25007V

7. Kết luận
Với thiết kế hiện đại, công nghệ cảm ứng tiên tiến và khả năng tiết kiệm nước vượt trội, TOTO TLE25007V là giải pháp hoàn hảo cho phòng tắm hiện đại. Sản phẩm vừa đảm bảo vệ sinh, vừa tiết kiệm chi phí và mang lại sự tiện nghi cho người dùng.



