TKS05316J – Giải pháp tối ưu với hiệu suất ổn định và độ bền vượt trội
1. Giới thiệu về TKS05316J
TKS05316J là sản phẩm được thiết kế nhằm đáp ứng nhu cầu sử dụng đa dạng của người dùng hiện nay. Với kiểu dáng nhỏ gọn, công nghệ tiên tiến và khả năng hoạt động ổn định, TKS05316J nhanh chóng trở thành lựa chọn tin cậy cho cả hộ gia đình lẫn doanh nghiệp.
2. Đặc điểm nổi bật
TKS05316J mang đến nhiều điểm khác biệt nhờ sự kết hợp giữa thiết kế tiện dụng và hiệu suất cao. Sản phẩm hoạt động ổn định trong thời gian dài, hạn chế sự cố, đồng thời có khả năng tiết kiệm điện năng hiệu quả.
Ngoài ra, TKS05316J được chế tạo từ vật liệu bền bỉ, có khả năng chống gỉ sét và ăn mòn, giúp duy trì tuổi thọ lâu dài ngay cả trong môi trường khắc nghiệt.
3. Ưu điểm khi sử dụng TKS05316J
-
Tiết kiệm chi phí: Vận hành hiệu quả, tiêu hao ít điện năng.
-
Độ bền cao: Vật liệu chắc chắn, chống ăn mòn, kéo dài tuổi thọ.
-
Hoạt động êm ái: Độ ồn thấp, phù hợp cho không gian yên tĩnh.
-
Thiết kế tiện lợi: Gọn nhẹ, dễ dàng lắp đặt ở nhiều vị trí.
-
Ứng dụng linh hoạt: Sử dụng được cho hộ gia đình, văn phòng và công trình.
4. Ứng dụng thực tế
TKS05316J được ứng dụng rộng rãi trong đời sống và sản xuất. Trong gia đình, sản phẩm mang lại sự tiện nghi và an toàn khi sử dụng hàng ngày. Trong doanh nghiệp, TKS05316J giúp nâng cao hiệu quả công việc nhờ vận hành ổn định và chi phí bảo trì thấp.
Ngoài ra, với thiết kế bền chắc, TKS05316J cũng phù hợp cho các môi trường thương mại, văn phòng và dịch vụ.
5. Thông số kỹ thuật cơ bản
- Đồng thau mạ crom, bề mặt bóng loáng.
- Kiểu lắp đặt: Lắp chậu rửa lavabo.
- Tính năng: Vòi nóng lạnh, tay gạt dễ thao tác.
- Phụ kiện đầy đủ: Dây cấp nước, ốc siết, gioăng cao su.
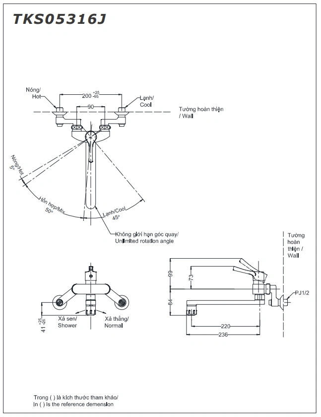
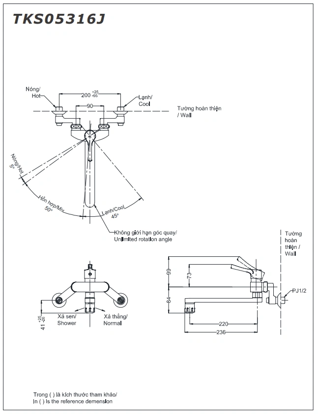
6. Bản vẽ kỹ thuật 2D vòi rửa chén bát nóng lạnh TKS05316J

7. Kết luận
TKS05316J không chỉ nổi bật bởi thiết kế hiện đại mà còn bởi khả năng vận hành bền bỉ, tiết kiệm và an toàn. Với những ưu điểm vượt trội, sản phẩm này là lựa chọn lý tưởng cho cả hộ gia đình lẫn doanh nghiệp.



