Bồn Cầu TOTO CS767RW18 – Sang Trọng, Hiện Đại và Tiện Nghi Đỉnh Cao
TOTO CS767RW18 là mẫu bồn cầu hai khối tích hợp nắp rửa điện tử Washlet C2 (mã TCF23710AAA), mang đến trải nghiệm vệ sinh cao cấp, phù hợp với xu hướng sống hiện đại và nâng tầm không gian phòng tắm.
1. Phong Cách Thiết Kế – Thanh Lịch & Thân Thiện
-
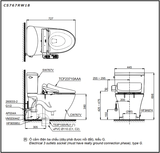
Kích thước: 727 mm (dài) × 445 mm (rộng) × 698 mm (cao), phù hợp với phòng tắm tiêu chuẩn hiện nay.
-
Kiểu dáng thân dài (elongated) và thân kín (full skirt) mang lại vẻ ngoài tinh tế cùng độ an toàn cao.
-
Màu trắng sáng bóng, dễ phối đồ nội thất và tăng cảm giác sạch sẽ, sang trọng.
2. Tiết Kiệm Nước, Hiệu Suất Cao – Công Nghệ Tornado Flush
-
Hệ thống xả xoáy Tornado mạnh mẽ, cuốn trôi hiệu quả mọi vết bẩn chỉ trong một lần xả, đồng thời hoạt động êm ái.
-
Lượng nước xả 4.8L — vừa đủ mạnh, vừa tiết kiệm theo tiêu chuẩn toàn cầu.
-
Áp lực nước phù hợp: từ 0.05 đến 0.70 MPa — tương thích với hầu hết hệ thống nước gia đình.
3. Dễ Vệ Sinh – Men CEFIONTECT & Vành Kín Rimless
-
Toàn bộ bề mặt sứ được phủ men CEFIONTECT, ngăn bám bẩn, dễ chùi rửa và chống nấm mốc.
-
Thiết kế vành kín không viền (rimless) loại bỏ các khe khuất, hạn chế vi khuẩn tích tụ, giúp vệ sinh đơn giản và hiệu quả hơn hẳn.
4. Nắp Rửa Điện Tử Washlet C2 – Thêm Tiện Ích, Thêm Trải Nghiệm
-
Nắp Washlet TCF23710AAA (dòng C2) kèm tính năng đẳng cấp: vòi rửa massage đa chức năng, có thể điều chỉnh nhiệt độ và áp lực nước, phù hợp cả rửa sau và rửa trước cho nữ.
-
Trang bị thêm sưởi ấm nắp ngồi, đảm bảo cảm giác dễ chịu, đặc biệt vào mùa lạnh.
-
Tự làm vệ sinh vòi trước và sau sử dụng, đảm bảo đầu vòi luôn sạch và kéo dài tuổi thọ thiết bị.
-
Có thêm tính năng phun sương PREMIST lần đầu trước mỗi sử dụng — tạo một lớp màng nước giúp hạn chế bám bẩn trong lòng cầu.
5. Bản vẽ kỹ thuật 2D bồn cầu CS767RW18

6. Lý Do Nên Chọn TOTO CS767RW18
-
Trải nghiệm vệ sinh cao cấp: nhờ nắp Washlet với sưởi ấm và vòi rửa linh hoạt.
-
Tiết kiệm & hiệu quả: bằng công nghệ Tornado Flush và thiết kế tiết kiệm nước.
-
Dễ vệ sinh, bền bỉ theo thời gian: nhờ men CEFIONTECT và thiết kế vững chắc.
-
Tinh tế & hiện đại: thiết kế hài hoà, sạch đẹp phù hợp mọi phòng tắm cao cấp.
-
Nguồn gốc rõ ràng: sản xuất tại Việt Nam (thân) với nắp điện tử từ Malaysia, đẳng cấp và đáng tin cậy.
7. Kết Luận
TOTO CS767RW18 là mẫu bồn cầu thông minh đỉnh cao, phù hợp cho những ai tìm kiếm sự kết hợp giữa tiện nghi, tiết kiệm và thẩm mỹ trong không gian sống. Khi chọn mẫu này, bạn đồng thời đang đầu tư vào một giải pháp vệ sinh tinh tế và bền lâu.



