Lavabo TOTO L1715 – Thiết kế hiện đại, tiện nghi tối đa
1. Giới thiệu sản phẩm
Lavabo TOTO L1715 là mẫu chậu rửa được thiết kế tinh tế, hiện đại, đáp ứng nhu cầu sử dụng đa dạng trong không gian phòng tắm. Với chất liệu sứ cao cấp, bền bỉ kết hợp công nghệ men chống bám bẩn, sản phẩm mang đến sự tiện nghi và nâng tầm thẩm mỹ cho ngôi nhà.
2. Thiết kế tinh tế – Sang trọng
-
Kiểu dáng đặt bàn: Lavabo TOTO L1715 mang thiết kế hình oval mềm mại, bo tròn tinh tế, giúp tạo điểm nhấn cho không gian.
-
Gam màu trắng men sáng bóng: Tạo sự thanh lịch, dễ dàng kết hợp với bàn đá và các phụ kiện khác trong phòng tắm.
-
Phong cách tối giản: Phù hợp với xu hướng thiết kế nội thất hiện đại, từ căn hộ chung cư đến biệt thự cao cấp.
3. Chất liệu và công nghệ sản xuất
-
Sản xuất từ sứ vệ sinh cao cấp, chống nứt vỡ, chịu lực tốt và bền đẹp theo thời gian.
-
Ứng dụng công nghệ men CEFIONTECT của TOTO: bề mặt siêu nhẵn mịn, hạn chế vi khuẩn, bụi bẩn và ố vàng.
-
Bề mặt dễ dàng vệ sinh, giữ được độ sáng bóng lâu dài.
4. Tính năng nổi bật
-
Thiết kế lòng chậu sâu rộng: Giúp chống văng nước và thuận tiện khi sử dụng.
-
Thoát nước nhanh chóng, không gây ứ đọng, giữ cho lavabo luôn sạch sẽ.
-
Tương thích nhiều mẫu vòi lavabo TOTO, mang lại sự đồng bộ và tiện nghi.
-
Tiết kiệm diện tích: Kích thước gọn gàng, phù hợp với nhiều không gian phòng tắm.
5. Thông số kỹ thuật
-
Mã sản phẩm: L1715
-
Loại sản phẩm: Lavabo đặt bàn
-
Chất liệu: Sứ vệ sinh cao cấp
-
Công nghệ: Men chống bám bẩn CEFIONTECT
-
Màu sắc: Trắng sáng
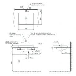
6. Bản vẽ kỹ thuật 2D lavabo Đặt Bàn L1715

7. Ưu điểm nổi bật
-
Độ bền vượt trội: Sử dụng lâu dài, hạn chế nứt vỡ.
-
Vệ sinh dễ dàng: Nhờ bề mặt siêu nhẵn và công nghệ men chống bám bẩn.
-
Thẩm mỹ hiện đại: Tôn vinh sự sang trọng cho không gian phòng tắm.
-
Thương hiệu uy tín: TOTO – thương hiệu thiết bị vệ sinh hàng đầu Nhật Bản.
8. Ứng dụng thực tế
Lavabo TOTO L1715 phù hợp lắp đặt tại:
-
Phòng tắm gia đình, căn hộ cao cấp.
-
Khách sạn, resort, homestay sang trọng.
-
Văn phòng, công trình công cộng, trung tâm thương mại.
9. Kết luận
Với thiết kế sang trọng, chất liệu cao cấp và công nghệ tiên tiến, Lavabo TOTO L1715 là lựa chọn hoàn hảo cho những ai tìm kiếm sự tiện nghi, hiện đại và thẩm mỹ trong không gian phòng tắm. Đây là giải pháp nâng cao chất lượng sống và mang đến sự hài lòng cho người dùng.



