Bồn cầu TOTO CS320PDRT3 – Giải pháp vệ sinh thông minh, tiết kiệm nước và sang trọng
TOTO CS320PDRT3 là mẫu bồn cầu hai khối xả gạt thuộc dòng phổ thông chất lượng cao đến từ thương hiệu thiết bị vệ sinh danh tiếng TOTO Nhật Bản. Với thiết kế tinh gọn, công nghệ xả mạnh mẽ nhưng tiết kiệm nước, cùng lớp men chống bám bẩn CeFiONtect nổi tiếng, CS320PDRT3 mang lại trải nghiệm sử dụng tiện nghi, bền bỉ và an toàn cho mọi gia đình Việt.
1. Thiết kế hai khối – Tiện lợi và dễ lắp đặt
Bồn cầu TOTO CS320PDRT3 có thiết kế hai khối truyền thống – két nước và thân cầu tách rời, thuận tiện cho quá trình lắp đặt, sửa chữa và thay thế linh kiện khi cần. Thiết kế này đặc biệt phù hợp với các hộ gia đình, chung cư, nhà phố hoặc công trình dân dụng có diện tích phòng tắm từ nhỏ đến trung bình.
Phần thân bồn cầu được thiết kế bán kín (half-skirted), không chỉ giúp bề mặt liền mạch, thẩm mỹ mà còn dễ vệ sinh hơn so với các mẫu có chân cầu hở. Sản phẩm có kích thước tiêu chuẩn (695 x 380 x 765 mm) và màu trắng sứ sang trọng, phù hợp với mọi không gian nội thất phòng tắm.
2. Công nghệ men CeFiONtect – Ngăn bám bẩn, giữ sứ luôn sáng bóng
Điểm nổi bật của TOTO CS320PDRT3 chính là lớp men sứ CeFiONtect – một phát minh độc quyền từ TOTO. Công nghệ này tạo ra bề mặt men cực kỳ nhẵn mịn, không có các lỗ nhỏ li ti nên hạn chế tối đa sự bám dính của vi khuẩn, mảng bám và cặn bẩn.
Lớp men CeFiONtect giúp sản phẩm luôn sáng bóng, sạch sẽ mà không cần sử dụng quá nhiều chất tẩy rửa hóa học. Từ đó, người dùng vừa tiết kiệm được thời gian vệ sinh, vừa bảo vệ sức khỏe và môi trường sống.
3. Hệ thống xả Siphon – Xả mạnh, cuốn sạch, tiết kiệm nước
CS320PDRT3 được trang bị hệ thống xả Siphon mạnh mẽ với cần gạt xả truyền thống. Nhờ thiết kế ống xả có lực hút chân không, sản phẩm tạo ra dòng xoáy nước mạnh mẽ, giúp cuốn sạch chất bẩn chỉ trong một lần xả, không gây bắn nước ra ngoài.
Dung tích xả 6.5 lít/lần được tối ưu hóa để vừa đảm bảo khả năng làm sạch tối đa, vừa giúp người dùng không lãng phí nước. Hệ thống xả gạt cũng dễ thao tác, bền bỉ và đặc biệt thích hợp với các khu vực có áp lực nước trung bình đến cao.
4. Nắp đóng êm TC385VS – Trải nghiệm nhẹ nhàng, không gây tiếng ồn
Bồn cầu TOTO CS320PDRT3 đi kèm với nắp ngồi đóng êm TC385VS, giúp hạn chế tiếng ồn trong quá trình sử dụng, đặc biệt là vào ban đêm. Cơ chế đóng chậm giúp bảo vệ thân sứ khỏi va đập mạnh, đồng thời nâng cao trải nghiệm sử dụng cho người lớn tuổi, trẻ nhỏ và gia đình có không gian sống yên tĩnh.
5. Tâm xả 305mm – Tương thích phổ biến, dễ lắp đặt
Với tâm xả 305mm, CS320PDRT3 phù hợp với tiêu chuẩn xây dựng phổ biến tại Việt Nam. Điều này giúp việc lắp đặt mới hoặc thay thế bồn cầu cũ trở nên dễ dàng, không cần điều chỉnh nhiều về đường ống thoát sàn. Đây là lợi thế lớn giúp tiết kiệm chi phí và thời gian khi thi công.
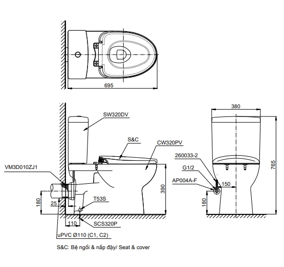
6. Thông số kỹ thuật bồn cầu TOTO CS320PDRT3
-
Mã sản phẩm: CS320PDRT3
-
Bao gồm:
-
Thân cầu: C320R
-
Két nước: S320D
-
Nắp đóng êm: TC385VS
-
-
Kiểu xả: Siphon – xả gạt
-
Lượng nước xả: 6.5 lít
-
Tâm xả: 305mm
-
Kích thước: 695 x 380 x 765 mm
-
Màu sắc: Trắng
-
Chất liệu sứ: Phủ men CeFiONtect chống bám bẩn
-
Áp lực nước: 0.05 MPa ~ 0.75 MPa
-
Xuất xứ: Việt Nam
-
Bảo hành: Chính hãng TOTO 2 năm
7. Bản vẽ kỹ thuật 2D bồn cầu CS320PDRT3

8. Ưu điểm nổi bật của TOTO CS320PDRT3
-
Thiết kế hiện đại, dễ lắp đặt, dễ vệ sinh
-
Lớp men CeFiONtect siêu nhẵn, hạn chế mảng bám
-
Xả sạch, mạnh mẽ với hệ thống Siphon
-
Nắp đóng êm, chống ồn, an toàn cho trẻ nhỏ
-
Tiết kiệm nước, thân thiện môi trường
-
Giá cả hợp lý, chất lượng bền bỉ
9. Kết luận
Bồn cầu TOTO CS320PDRT3 là giải pháp hoàn hảo cho các gia đình, căn hộ, công trình đang tìm kiếm một sản phẩm chất lượng, dễ sử dụng và có độ bền cao. Với công nghệ men sứ tiên tiến, hệ thống xả hiệu quả và thiết kế tiện nghi, CS320PDRT3 không chỉ giúp bạn nâng tầm không gian sống mà còn tiết kiệm chi phí lâu dài.



