TOTO MS823DRW11 – Bồn cầu thông minh nguyên khối tích hợp Washlet hiện đại, nâng tầm trải nghiệm phòng tắm
Trong không gian sống hiện đại, mỗi thiết bị trong gia đình đều đóng vai trò quan trọng trong việc mang lại sự tiện nghi, sạch sẽ và an toàn cho cả gia đình. Trong đó, bồn cầu thông minh ngày càng được ưa chuộng nhờ tích hợp công nghệ tiên tiến, giúp người dùng trải nghiệm sự thoải mái và vệ sinh tối đa. Một trong những sản phẩm nổi bật đến từ thương hiệu TOTO Nhật Bản chính là TOTO MS823DRW11 – bồn cầu thông minh liền khối tích hợp nắp rửa điện tử Washlet, vừa đẹp mắt, vừa đầy đủ tính năng cao cấp, hứa hẹn mang lại sự hài lòng tuyệt đối.
1. Thiết kế liền khối – Tối giản, hiện đại và sang trọng
TOTO MS823DRW11 sở hữu thiết kế liền khối nguyên khối (one-piece) với két nước và thân bồn cầu nối liền, mang lại cảm giác liền mạch, tinh tế và hiện đại. Đây là kiểu thiết kế được ưa chuộng trong các không gian phòng tắm cao cấp như khách sạn 5 sao, biệt thự, căn hộ cao cấp hoặc nhà phố hiện đại.
Thân cầu được thiết kế theo dạng thân dài (elongated), giúp mang đến cảm giác thoải mái và hỗ trợ tốt hơn cho tư thế ngồi. Bề mặt được phủ lớp men sứ trắng sáng, sang trọng, dễ kết hợp với các thiết bị vệ sinh khác trong phòng tắm.
2. Nắp rửa điện tử Washlet TCF24410A – Tiện nghi và thông minh
Điểm nổi bật của bồn cầu MS823DRW11 chính là nắp rửa điện tử Washlet TCF24410A, mang lại trải nghiệm vệ sinh thông minh và toàn diện. Washlet là dòng sản phẩm nổi bật nhất của TOTO, tích hợp nhiều công nghệ tiên tiến, đặc biệt phù hợp với nhu cầu sống sạch – sống khỏe trong thời đại hiện nay.
Các tính năng nổi bật:
-
Rửa trước và rửa sau bằng nước ấm: Có thể điều chỉnh nhiệt độ và áp lực theo nhu cầu.
-
Sưởi ấm bệ ngồi: Đặc biệt hữu ích trong mùa lạnh, tạo cảm giác dễ chịu khi sử dụng.
-
Tự động khử mùi: Hệ thống lọc mùi hoạt động sau mỗi lần sử dụng, giữ không gian phòng tắm luôn thơm tho.
-
Tự động phun sương lòng cầu (Premist): Làm ướt bề mặt sứ trước khi sử dụng, ngăn ngừa chất bẩn bám dính.
-
Vòi rửa đa chế độ: Có thể điều chỉnh vị trí, áp lực và nhiệt độ nước.
-
Chức năng tiết kiệm điện và nước: Giúp giảm chi phí vận hành hàng tháng.
-
Remote điều khiển từ xa, dễ sử dụng, gắn tường hoặc cầm tay.
Washlet TCF24410A mang đến trải nghiệm vệ sinh không cần dùng tay, phù hợp với xu hướng sống không chạm (hands-free) hiện đại và rất hữu ích cho người lớn tuổi, người bệnh hoặc phụ nữ mang thai.
3. Công nghệ xả Tornado Flush – Xả xoáy mạnh mẽ, sạch sâu, êm ái
Bồn cầu MS823DRW11 sử dụng công nghệ xả Tornado Flush – một trong những công nghệ độc quyền và hiệu quả nhất của TOTO. Với hai vòi xả hướng theo chiều xoáy quanh lòng cầu, Tornado Flush không chỉ tạo lực cuốn trôi chất bẩn mạnh mẽ mà còn giúp giảm tiếng ồn và hạn chế bắn nước.
Sản phẩm được tích hợp chế độ xả kép:
-
Xả đại: 4.5 lít
-
Xả tiểu: 3.0 lít
Cơ chế này giúp tiết kiệm nước tối đa, nhưng vẫn đảm bảo hiệu quả làm sạch hoàn hảo.
4. Men sứ CeFiONtect – Giữ cho bồn cầu luôn sạch và bền đẹp
Toàn bộ bề mặt sứ của bồn cầu được tráng lớp men CeFiONtect – công nghệ phủ men siêu mịn độc quyền của TOTO. Lớp men này giúp ngăn ngừa vi khuẩn, cặn bẩn và vết ố, hạn chế sự phát triển của nấm mốc và giúp lòng cầu luôn sáng bóng. Nhờ đó, người dùng tiết kiệm thời gian vệ sinh và duy trì được vẻ thẩm mỹ cho phòng tắm trong thời gian dài.
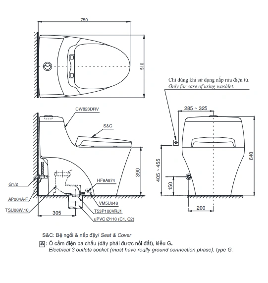
5. Bản vẽ kỹ thuật 2D bồn cầu MS823DRW11

6. Vì sao nên chọn TOTO MS823DRW11?
-
Thiết kế nguyên khối liền mạch, dễ vệ sinh
-
Tích hợp Washlet hiện đại – trải nghiệm không chạm, vệ sinh cá nhân hóa
-
Hệ thống xả Tornado Flush mạnh mẽ, tiết kiệm nước
-
Men sứ CeFiONtect siêu sạch, bền màu theo thời gian
-
Điều khiển tiện lợi – phù hợp với mọi thành viên trong gia đình
-
Thương hiệu TOTO – đẳng cấp Nhật Bản, bảo hành chính hãng
Kết luận
TOTO MS823DRW11 là lựa chọn lý tưởng cho mọi gia đình hiện đại đang tìm kiếm một bồn cầu thông minh, tích hợp đầy đủ công nghệ tiên tiến, thiết kế sang trọng và hiệu năng sử dụng bền bỉ. Với sản phẩm này, không gian phòng tắm của bạn không chỉ trở nên tiện nghi hơn mà còn phản ánh một phong cách sống hiện đại, tinh tế và đầy đẳng cấp.



