Giới thiệu TOTO CS767CRW12 – Sự kết hợp hoàn hảo giữa công nghệ tiên tiến và thẩm mỹ
TOTO CS767CRW12 là dòng sản phẩm bàn cầu hai khối cao cấp, được trang bị nắp rửa điện tử Washlet S7 TCF4911EZ – một biểu tượng của sự tiện nghi và sang trọng. Với thiết kế giấu dây tinh tế, thân kín, thân dài và kích thước tiêu chuẩn 727 × 445 × 698 mm, mẫu bàn cầu này dễ dàng hài hòa với mọi không gian phòng tắm hiện đại.
Tính năng nổi bật
1. Thiết kế thẩm mỹ và thân thiện
-
Giấu dây: Nắp rửa điện tử có thiết kế giấu dây giúp mặt sau của bồn cầu trông gọn gàng và nâng cao tính thẩm mỹ.
-
Thân kín, vành kín (Rimless): Thiết kế giúp hạn chế vi khuẩn và tạp chất bám vào, dễ dàng cho việc vệ sinh hàng ngày.
-
Men sứ CeFiONtect: Lớp men siêu nhẵn, chống bám bẩn và vi khuẩn, giữ bề mặt luôn sáng bóng như mới.
2. Hệ thống xả vượt trội
-
Tornado Siphon-Jet: Hệ thống xả xoáy siêu mạnh, hoạt động êm ái, làm sạch toàn bộ lòng bàn cầu hiệu quả với lượng nước chỉ 4.8 L/4.5 L tùy nơi bán.
-
Tiết kiệm nước: Một lần xả sử dụng lượng nước tối ưu, giúp giảm chi phí và bảo vệ môi trường.
3. Nắp rửa điện tử Washlet S7 TCF4911EZ – trải nghiệm đẳng cấp
-
Chức năng rửa linh hoạt:
-
Rửa trước (tiểu nữ), rửa sau, rửa massage với vòi chuyển động tới lui.
-
Điều chỉnh vị trí vòi rửa, áp lực nước và nhiệt độ phù hợp với người dùng.
-
-
Tính năng X-Tăng trải nghiệm:
-
Đóng/mở tự động khi người dùng tới gần hoặc rời đi.
-
Sưởi ấm bệ ngồi với nhiệt độ có thể điều chỉnh.
-
Sấy khô bằng gió ấm, cảm giác dễ chịu sau mỗi lần sử dụng.
-
Khử mùi tự động bằng quạt gió tích hợp kết hợp màng lọc than hoạt tính.
-
-
Công nghệ làm sạch tiên tiến:
-
Ewater+: Phun sương nước điện phân khử trùng, giúp làm sạch lòng bàn cầu và vòi phun trước và sau sử dụng.
-
Premist: Phun sương ẩm trước khi sử dụng, giúp chất thải không bám lại trên bề mặt cầu (trong các dòng tương đương).
-
-
Bảng điều khiển không dây: Thiết kế tiện lợi, phù hợp với thói quen sử dụng hiện đại.
-
Chất liệu kháng khuẩn: Nắp và bệ ngồi được làm từ vật liệu kháng khuẩn, đảm bảo vệ sinh và an toàn sức khỏe.
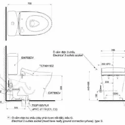
4. Bản vẽ kỹ thuật 2D bồn cầu CS767CRW12

5. Lợi ích nổi bật cho người dùng
-
Vệ sinh toàn diện: Công nghệ rửa tự động, sấy khô, khử mùi và làm sạch tự vệ sinh giúp giữ khu vực WC luôn sạch sẽ, giảm thiểu sử dụng hóa chất.
-
Giảm chi phí bảo trì: Thân vành kín, men sứ chống bám bẩn, nắp giấu dây giúp vệ sinh dễ dàng và giảm công sức lau dọn.
-
An toàn và tiện nghi: Nhiệt độ ấm, điều chỉnh linh hoạt, đóng mở tự động và điều khiển không dây mang đến trải nghiệm thân thiện.
-
Thiết kế hiện đại: Phù hợp với không gian nội thất cao cấp, tạo điểm nhấn thẩm mỹ cho phòng tắm.
6. Kết luận
TOTO CS767CRW12 là lựa chọn lý tưởng nếu bạn tìm kiếm một bàn cầu cao cấp, tích hợp công nghệ vệ sinh tự động, tiết kiệm nước và thiết kế tinh tế. Sản phẩm là minh chứng cho sự kết hợp hoàn hảo giữa tiện nghi hiện đại và thẩm mỹ cao cấp trong không gian phòng tắm. Với những tính năng vượt trội như rửa massage, sấy khô, khử mùi, Ewater+ và thiết kế thân kín – đây chính là dòng sản phẩm giúp nâng tầm trải nghiệm sử dụng và chăm sóc sức khỏe gia đình bạn.



