1. Giới thiệu tổng quan – TOTO CS986CGW12: Tiện nghi đỉnh cao, thiết kế hiện đại
TOTO CS986CGW12 là mẫu bàn cầu hai khối cao cấp của TOTO, kết hợp cùng nắp rửa điện tử Washlet S7 (mã TCF4911EZ) với thiết kế giấu dây tinh tế. Sản phẩm mang đến trải nghiệm vệ sinh tối ưu, tiện nghi và sang trọng, đồng thời dễ dàng hòa hợp với phong cách nội thất phòng tắm hiện đại. Kích thước sản phẩm là 700 mm (dài) × 456 mm (rộng) × 765 mm (cao).
Xuất xứ: thân cầu sản xuất tại Việt Nam, nắp rửa đến từ Malaysia.
2. Thiết kế và chất liệu – sang trọng và vệ sinh
-
Thân dài, thân kín, vành kín – giúp đảm bảo thẩm mỹ và dễ vệ sinh, hạn chế tích tụ vi khuẩn.
-
Giấu dây – mang đến vẻ ngoài gọn gàng, tinh tế.
-
Men sứ CeFiONtect – bề mặt siêu mịn, chống bám bẩn và vi khuẩn, dễ dàng chùi rửa.
3. Hệ thống xả – hiệu quả và tiết kiệm
-
Công nghệ xả Tornado – tạo đảo nước xoáy mạnh, xả sạch toàn bộ lòng bồn cầu mà vẫn êm ái; đi kèm chế độ xả tiết kiệm hai mức: 4.5 L hoặc 3 L.
4. Nắp rửa điện tử Washlet S7 – sự kết hợp của công nghệ và tiện ích
Tính năng nổi bật:
-
Tự động đóng/mở nắp khi người dùng đến gần hoặc rời đi.
-
Sưởi ấm nắp ngồi, điều chỉnh nhiệt độ bệ ngồi linh hoạt.
-
Ewater+ phun sương kháng khuẩn – làm sạch lòng bồn cầu và vòi phun trước/sau mỗi lần sử dụng, giúp ngăn vi khuẩn hiệu quả.
-
Chức năng rửa đa dạng: rửa trước, rửa sau với chế độ massage, cho phép điều chỉnh vị trí vòi phun, áp lực và nhiệt độ nước.
-
Khử mùi tự động bằng quạt tích hợp – tăng cường sự thoải mái và sạch sẽ.
-
Điều khiển từ xa không dây, kèm hai chế độ người dùng – rất tiện lợi và thuận tiện
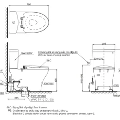
5. Bản vẽ kỹ thuật 2D bồn cầu CS986CGW12

6. Lợi ích người dùng – nâng tầm trải nghiệm tiện nghi
-
Vệ sinh toàn diện, giảm vi khuẩn: chức năng phun Ewater+, rửa, sấy, khử mùi tích hợp—giúp giữ sạch cải thiện sức khỏe toàn diện.
-
Tiết kiệm nước thông minh, xả kép hiệu quả mà thân thiện với môi trường.
-
Tăng sự thoải mái khi sử dụng: sưởi ấm nắp, massage, đóng/mở tự động—tạo trải nghiệm cao cấp.
-
Thiết kế hiện đại, dễ hợp nhãn: thân kín, vành kín, giấu dây, men trắng bóng—phù hợp phòng tắm tinh tế.
-
Dễ dàng lắp đặt và vệ sinh, ít phải bảo trì nhờ thiết kế và vật liệu thông minh.
7. Kết luận
Sản phẩm TOTO CS986CGW12 là sự lựa chọn hoàn hảo nếu bạn đang tìm kiếm một bàn cầu cao cấp, tích hợp công nghệ hiện đại, tiện nghi và thẩm mỹ cho phòng tắm. Với hệ thống xả Tornado mạnh mẽ, nắp rửa Washlet S7 với hàng loạt chức năng như rửa massage, sưởi ấm, sấy khô, khử mùi và làm sạch tự động—tất cả đều nhằm nâng cao trải nghiệm sử dụng và tối ưu vệ sinh cá nhân.



