TOTO CW553C/TCF33370GAA/WH172AT/TCA465/MB170P#SS – Giải pháp bàn cầu treo tường thông minh, sang trọng cho phòng tắm hiện đại
Trong xu hướng kiến trúc hiện nay, phòng tắm không chỉ là nơi đáp ứng nhu cầu vệ sinh mà còn là không gian thư giãn và chăm sóc sức khỏe. Chính vì thế, TOTO – thương hiệu thiết bị vệ sinh hàng đầu Nhật Bản – đã mang đến bộ sản phẩm CW553C/TCF33370GAA/WH172AT/TCA465/MB170P#SS, sự kết hợp hoàn hảo giữa thiết kế tinh gọn, công nghệ thông minh và tính năng vượt trội.
1. Thiết kế treo tường tối giản – Tăng tính thẩm mỹ
-
Bàn cầu treo tường CW553C có kiểu dáng gọn gàng, hiện đại, treo nổi trên tường, giúp tiết kiệm diện tích và mang lại sự thông thoáng tối đa.
-
Két âm tường WH172AT được lắp đặt ẩn, giấu kín bên trong tường, loại bỏ sự cồng kềnh của két nước truyền thống, đem đến vẻ đẹp tinh tế, tối giản.
-
Mặt nhấn MB170P#SS bằng thép không gỉ, thiết kế sang trọng, dễ dàng thao tác và nâng cao tính thẩm mỹ cho toàn bộ không gian.
2. Tích hợp nắp rửa điện tử WASHLET TCF33370GAA
-
WASHLET TCF33370GAA được trang bị hàng loạt tính năng thông minh:
-
Rửa bằng nước ấm nhiều chế độ, có thể điều chỉnh áp lực và vị trí vòi rửa.
-
Sấy khô bằng khí ấm cho trải nghiệm khô ráo, dễ chịu.
-
Khử mùi tự động với công nghệ khử mùi tiên tiến, giữ phòng tắm luôn thoáng đãng.
-
Sưởi ấm bệ ngồi phù hợp cho cả mùa đông, tạo sự thoải mái tuyệt đối.
-
Điều khiển từ xa tiện lợi, dễ dàng tùy chỉnh mọi chế độ chỉ với một thao tác.
-
3. Công nghệ vệ sinh vượt trội
-
Xả xoáy Tornado Flush với luồng nước mạnh mẽ, xoáy vòng khắp lòng cầu, đảm bảo loại bỏ mọi vết bẩn chỉ trong một lần xả.
-
Men sứ CEFIONTECT độc quyền của TOTO giúp hạn chế vi khuẩn, ngăn ngừa cặn bẩn và duy trì bề mặt sáng bóng trong thời gian dài.
-
Nắp TCA465 thiết kế khép kín, vừa khít, giúp tăng thêm độ bền và sự đồng bộ cho bộ sản phẩm.
4. Ưu điểm nổi bật của bộ sản phẩm
-
Tiết kiệm diện tích nhờ thiết kế treo tường hiện đại.
-
Mang lại trải nghiệm thông minh với WASHLET TCF33370GAA, đảm bảo vệ sinh tuyệt đối.
-
Công nghệ xả mạnh mẽ nhưng tiết kiệm nước, bảo vệ môi trường.
-
Mặt nhấn MB170P#SS sang trọng, bền bỉ và dễ sử dụng.
-
Két âm tường WH172AT an toàn, bền vững và thẩm mỹ.
-
Dễ dàng vệ sinh, hạn chế tối đa vi khuẩn, mang lại không gian trong lành.
5. Thông số kỹ thuật chi tiết
-
Mã sản phẩm: CW553C/TCF33370GAA/WH172AT/TCA465/MB170P#SS
-
Loại bàn cầu: Treo tường
-
Nắp rửa điện tử: WASHLET TCF33370GAA
-
Nắp phụ kiện: TCA465
-
Két nước âm tường: WH172AT
-
Mặt nhấn: MB170P#SS – thép không gỉ
-
Công nghệ xả: Tornado Flush, 2 chế độ xả
-
Lớp men: CEFIONTECT chống bám bẩn
-
Xuất xứ: Thương hiệu TOTO – Nhật Bản
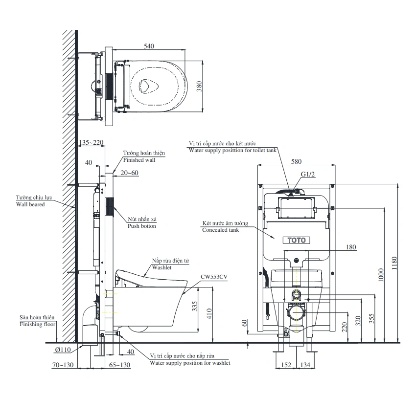
6. Bản vẽ kỹ thuật 2D bồn cầu treo tường CW553C/TCF33370GAA/WH172AT/TCA465/MB170P#SS

7. Lý do bạn nên chọn CW553C/TCF33370GAA/WH172AT/TCA465/MB170P#SS
Bộ sản phẩm này không chỉ mang đến giải pháp vệ sinh thông minh, tiện nghi và an toàn cho sức khỏe, mà còn nâng tầm không gian phòng tắm với phong cách sang trọng, hiện đại và đẳng cấp. Đặc biệt, sản phẩm phù hợp với mọi không gian từ căn hộ cao cấp đến biệt thự sang trọng, đảm bảo đáp ứng mọi nhu cầu của gia đình Việt.



