Lavabo TOTO LT328C – Thiết Kế Đơn Giản, Tiện Lợi và Hiện Đại
Lavabo TOTO LT328C là mẫu chậu rửa được thiết kế đặt dương vành, phù hợp cho nhiều không gian phòng tắm khác nhau. Với kiểu dáng hiện đại, chất liệu cao cấp và công nghệ men chống bám bẩn tiên tiến, sản phẩm không chỉ mang lại sự tiện nghi mà còn nâng tầm thẩm mỹ cho không gian sống.
1. Thiết kế đặt dương vành – Sang trọng và tinh tế
Lavabo LT328C có kiểu dáng đặt dương vành (Self-rimming), đường nét bo tròn mềm mại, mang đến sự cân đối và thanh lịch cho không gian. Đây là lựa chọn lý tưởng cho gia đình, khách sạn, resort hay các công trình cao cấp.
2. Chất liệu cao cấp – Độ bền vượt trội
Sản phẩm được sản xuất từ sứ vệ sinh Vitreous China chất lượng cao, có khả năng chống nứt vỡ, bền chắc và duy trì độ sáng bóng lâu dài. Bề mặt mịn màng không chỉ đẹp mắt mà còn đảm bảo vệ sinh an toàn cho người dùng.
3. Công nghệ men CeFiONtect – Giữ sạch vượt trội
Lavabo LT328C được ứng dụng công nghệ men CeFiONtect độc quyền của TOTO. Lớp men siêu mịn này giúp ngăn ngừa vi khuẩn, cặn bẩn bám dính, từ đó tiết kiệm thời gian vệ sinh và giữ cho lavabo luôn sạch sẽ như mới.
4. Tính năng tiện ích – An toàn và dễ sử dụng
Sản phẩm có thiết kế lỗ thoát tràn, giúp hạn chế tình trạng nước tràn ra ngoài. Với kích thước vừa phải và thiết kế tiện dụng, LT328C phù hợp cho nhiều phong cách nội thất phòng tắm, mang đến trải nghiệm thoải mái cho người dùng.
5. Thông số kỹ thuật
-
Mã sản phẩm: TOTO LT328C
-
Loại chậu: Lavabo đặt dương vành (Self-rimming)
-
Kích thước: 500 × 440 × 190 mm (Dài × Rộng × Cao)
-
Chất liệu: Sứ vệ sinh cao cấp (Vitreous China)
-
Công nghệ: Men CeFiONtect chống bám bẩn
-
Tính năng: Lỗ thoát tràn an toàn
-
Màu sắc: Trắng tinh tế
-
Thương hiệu: TOTO – Nhật Bản
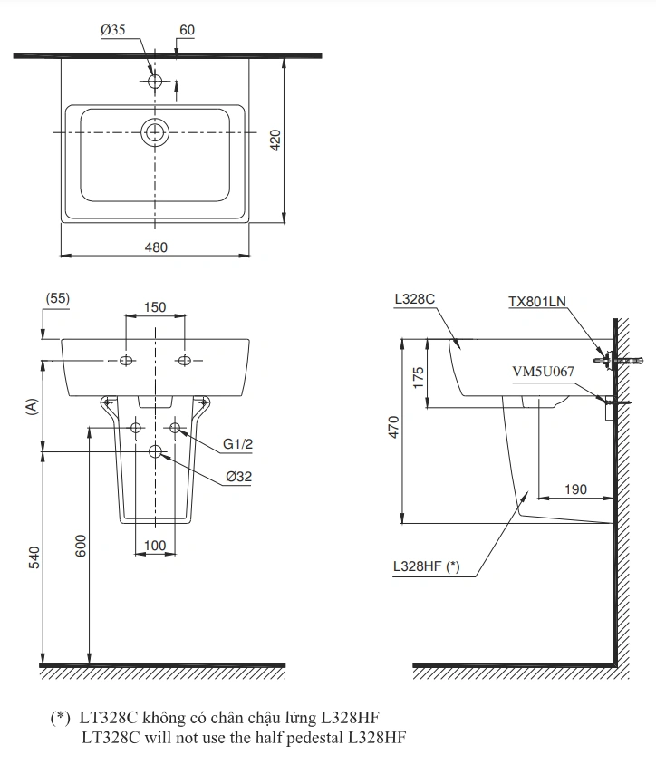
6. Bản vẽ kỹ thuật 2D lavabo treo tường LT328C

7. Kết luận
Lavabo TOTO LT328C là lựa chọn lý tưởng cho những ai tìm kiếm sự kết hợp giữa thiết kế tinh tế, chất liệu bền đẹp và công nghệ hiện đại. Với khả năng chống bám bẩn, dễ vệ sinh và độ bền vượt trội, sản phẩm chắc chắn sẽ mang lại sự hài lòng cho người dùng và nâng cao giá trị thẩm mỹ cho không gian phòng tắm.



