Vòi Lavabo Nóng Lạnh Gắn Tường TOTO TLG10307BB
1. Giới thiệu sản phẩm
TOTO TLG10307BB là mẫu vòi lavabo gắn tường cao cấp, sở hữu phong cách thiết kế hiện đại và tinh tế. Với lớp mạ đen mờ cá tính cùng chất liệu bền bỉ, sản phẩm mang lại không gian phòng tắm sang trọng, đẳng cấp và tiện nghi cho người sử dụng.
2. Đặc điểm nổi bật
-
Thiết kế gắn tường tinh gọn, tối ưu không gian và tăng tính thẩm mỹ.
-
Lớp mạ đen mờ (Matte Black) sang trọng, chống bong tróc, chống gỉ sét.
-
Tay gạt gật gù vận hành mượt mà, dễ dàng điều chỉnh nước nóng – lạnh.
-
Van đĩa sứ cao cấp, bền bỉ, chống rò rỉ, nâng cao tuổi thọ.
-
Chất liệu đồng thau cao cấp, đảm bảo độ bền và an toàn cho sức khỏe.
3. Lợi ích khi sử dụng
-
Mang lại sự tiện nghi, thoải mái trong sinh hoạt hằng ngày.
-
Giúp không gian phòng tắm trở nên gọn gàng, hiện đại và đẳng cấp.
-
Tiết kiệm nước nhưng vẫn duy trì dòng chảy ổn định.
-
Độ bền cao, hạn chế hư hỏng, giảm chi phí bảo trì.
4. Ứng dụng
Phù hợp lắp đặt tại gia đình, căn hộ cao cấp, khách sạn, resort và các công trình sang trọng, hiện đại cần sự tinh tế và tiện nghi.
5. Thông số kỹ thuật
-
Mã sản phẩm: TLG10307BB
-
Loại sản phẩm: Vòi lavabo nóng lạnh gắn tường
-
Chất liệu: Đồng thau cao cấp
-
Lớp mạ: Đen mờ (Matte Black)
-
Áp lực nước: 0.05MPa ~ 0.75MPa
-
Van điều khiển: Van đĩa sứ chống rò rỉ
-
Thương hiệu: TOTO
-
Xuất xứ: Việt Nam
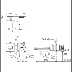
6. Bản vẽ kỹ thuật 2D vòi lavabo âm tường TLG10307BB

7. Kết luận
Với thiết kế gắn tường tinh tế, lớp mạ đen mờ sang trọng và chất liệu bền bỉ, TOTO TLG10307BB là lựa chọn lý tưởng cho những không gian phòng tắm cao cấp. Sản phẩm vừa mang lại sự tiện nghi, vừa khẳng định phong cách sống hiện đại và đẳng cấp.



