Vòi Lavabo Nóng Lạnh Gắn Tường TOTO TLP02309BA
1. Giới thiệu sản phẩm
TOTO TLP02309BA là mẫu vòi lavabo nóng lạnh gắn tường cao cấp, thiết kế tinh tế và hiện đại. Sản phẩm kết hợp chất liệu đồng thau bền bỉ cùng lớp mạ sáng bóng, mang lại sự tiện nghi, thoải mái khi sử dụng và tạo điểm nhấn sang trọng cho phòng tắm.
2. Đặc điểm nổi bật
-
Thiết kế gắn tường gọn gàng, tối ưu diện tích và nâng cao tính thẩm mỹ.
-
Tay vặn tiện lợi, điều chỉnh linh hoạt cả nước nóng và lạnh.
-
Lớp mạ Nickel – Crom bền đẹp, sáng bóng, chống bong tróc và ăn mòn.
-
Chất liệu đồng thau cao cấp, an toàn cho sức khỏe, bền chắc lâu dài.
-
Van đĩa sứ cao cấp, vận hành êm ái, chống rò rỉ hiệu quả.
3. Lợi ích khi sử dụng
-
Đảm bảo sự tiện nghi, dễ dàng điều chỉnh nhiệt độ nước theo nhu cầu.
-
Giúp không gian phòng tắm thêm gọn gàng, hiện đại và tinh tế.
-
Bền bỉ theo thời gian, tiết kiệm chi phí sửa chữa, thay thế.
-
Thích hợp cho nhiều không gian phòng tắm phong cách sang trọng.
4. Ứng dụng
Phù hợp lắp đặt tại gia đình, căn hộ cao cấp, khách sạn, resort và các công trình hiện đại cần sự tiện nghi và thẩm mỹ.
5. Thông số kỹ thuật
-
Mã sản phẩm: TLP02309BA
-
Loại sản phẩm: Vòi lavabo nóng lạnh gắn tường
-
Chất liệu: Đồng thau cao cấp
-
Lớp mạ: Nickel – Crom bền đẹp
-
Chế độ: Nóng và lạnh
-
Van điều khiển: Van đĩa sứ chống rò rỉ
-
Áp lực nước: 0.05MPa ~ 0.75MPa
-
Thương hiệu: TOTO
-
Xuất xứ: Việt Nam
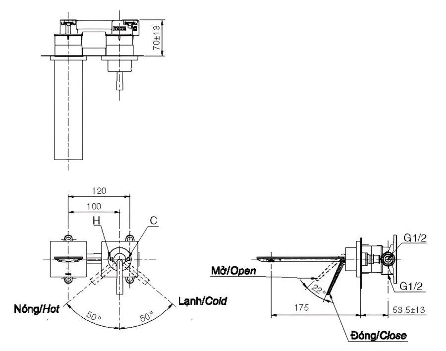
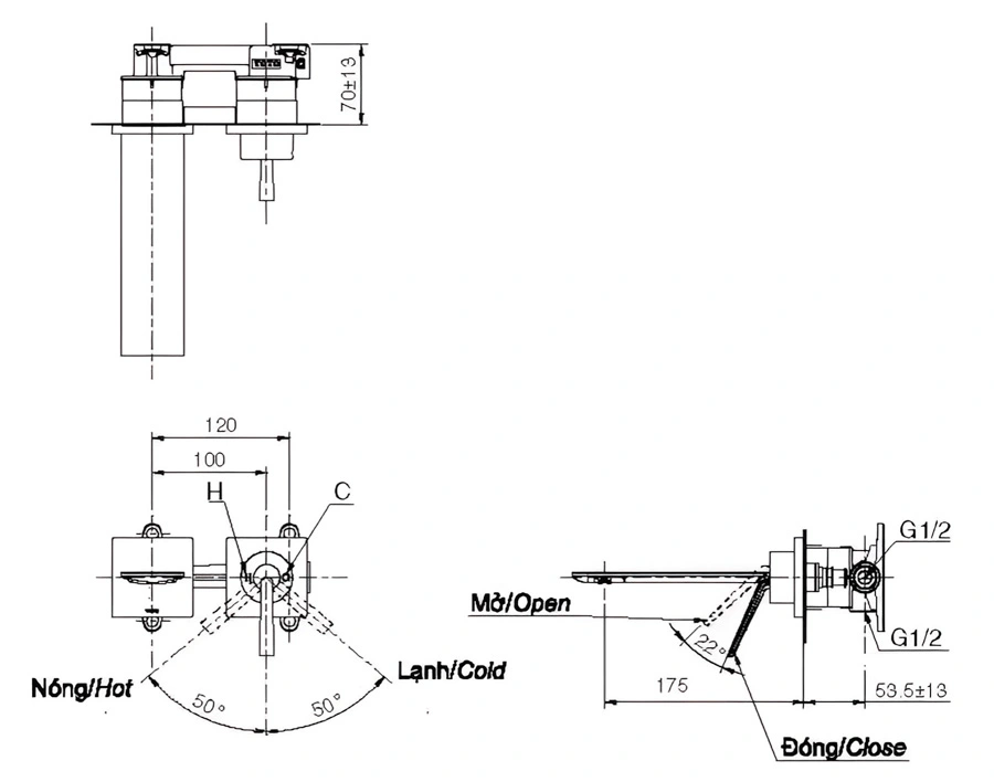
6. Bản vẽ kỹ thuật 2D vòi lavabo tay vặn nóng lạnh TLP02309BA

7. Kết luận
Với thiết kế gắn tường sang trọng, tính năng nóng lạnh tiện lợi và chất liệu bền bỉ, TOTO TLP02309BA là lựa chọn lý tưởng cho không gian phòng tắm cao cấp. Sản phẩm vừa tiện nghi, vừa góp phần khẳng định phong cách sống hiện đại và đẳng cấp.



