Vòi Lavabo Cảm Ứng TOTO TLE21006A
1. Giới thiệu sản phẩm
TOTO TLE21006A là mẫu vòi lavabo cảm ứng cao cấp, ứng dụng công nghệ cảm biến hồng ngoại tiên tiến. Với thiết kế để bàn nhỏ gọn, hiện đại và tính năng tự động cấp/ngắt nước, sản phẩm mang lại trải nghiệm tiện nghi, vệ sinh tối ưu và tiết kiệm nước cho người dùng.
2. Đặc điểm nổi bật
-
Công nghệ cảm biến hồng ngoại thông minh, vận hành hoàn toàn tự động.
-
Thiết kế để bàn tinh gọn, hiện đại, phù hợp với nhiều kiểu lavabo.
-
Lớp mạ Nickel – Crom sáng bóng, bền đẹp, chống bong tróc và ăn mòn.
-
Chất liệu đồng thau cao cấp, an toàn, bền chắc theo thời gian.
-
Sử dụng pin, không cần điện trực tiếp, an toàn và tiết kiệm năng lượng.
3. Lợi ích khi sử dụng
-
Mang đến sự tiện nghi, không cần chạm tay khi sử dụng.
-
Đảm bảo vệ sinh tối đa, hạn chế vi khuẩn tiếp xúc.
-
Tiết kiệm nước hiệu quả nhờ chế độ tự động ngắt.
-
Nâng cao tính thẩm mỹ, mang lại không gian hiện đại, sang trọng.
4. Ứng dụng
Phù hợp lắp đặt cho gia đình, khách sạn, resort, trung tâm thương mại, nhà hàng, bệnh viện và các công trình công cộng cần sự tiện nghi, vệ sinh và sang trọng.
5. Thông số kỹ thuật
-
Mã sản phẩm: TLE21006A
-
Loại sản phẩm: Vòi lavabo cảm ứng để bàn
-
Chất liệu: Đồng thau cao cấp
-
Lớp mạ: Nickel – Crom bền đẹp
-
Nguồn điện: Pin (không cần điện trực tiếp)
-
Áp lực nước: 0.05MPa ~ 0.75MPa
-
Kiểu xả: Cảm biến hồng ngoại tự động
-
Thương hiệu: TOTO
-
Xuất xứ: Việt Nam
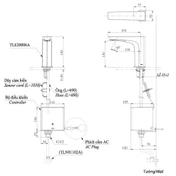
6. Bản vẽ kỹ thuật 2D vòi lavabo cảm ứng TLE21006A

7. Kết luận
Với thiết kế tinh tế, công nghệ cảm ứng hiện đại và chất liệu bền bỉ, TOTO TLE21006A là lựa chọn hoàn hảo cho không gian phòng tắm hiện đại. Sản phẩm vừa mang lại sự tiện nghi và vệ sinh tối ưu, vừa giúp tiết kiệm nước và khẳng định phong cách sống đẳng cấp.



