Vòi Sen Tắm TOTO TX116LESN – Sang Trọng, Hiện Đại
1. Giới thiệu sản phẩm
Vòi sen tắm TOTO TX116LESN là sản phẩm cao cấp được thiết kế để mang lại sự tiện nghi và thoải mái tối đa cho người dùng. Với thiết kế hiện đại, chất liệu bền bỉ và công nghệ tiên tiến, sản phẩm giúp nâng tầm trải nghiệm phòng tắm và tạo điểm nhấn sang trọng cho không gian sống.
2. Thiết kế tinh tế
Sản phẩm sở hữu kiểu dáng gọn gàng, đường nét hiện đại, dễ dàng kết hợp với nhiều phong cách nội thất. Tay sen cầm thoải mái, linh hoạt, mang đến trải nghiệm tắm thư giãn và tiện lợi.
3. Chất liệu cao cấp
TX116LESN được chế tác từ đồng thau nguyên chất, có độ bền cao và an toàn cho sức khỏe. Bề mặt được mạ Cr-Ni sáng bóng, giúp chống oxy hóa, chống gỉ sét và dễ dàng vệ sinh trong suốt quá trình sử dụng.
4. Ưu điểm nổi bật
-
Thiết kế thanh lịch, hiện đại.
-
Tay sen cầm vừa vặn, tiện dụng.
-
Chất liệu đồng thau cao cấp, bền chắc.
-
Bề mặt mạ Cr-Ni sáng bóng, chống ăn mòn.
-
Công nghệ tiết kiệm nước, thân thiện môi trường.
5. Thông số kỹ thuật
-
Mã sản phẩm: TOTO TX116LESN
-
Loại sản phẩm: Vòi sen tắm nóng lạnh
-
Chất liệu: Đồng thau nguyên chất
-
Lớp mạ: Cr-Ni sáng bóng
-
Áp lực nước: 0.05MPa ~ 0.75MPa
-
Van điều khiển: Van đĩa sứ bền bỉ, chống rò rỉ
-
Màu sắc: Bạc sáng (Chrome)
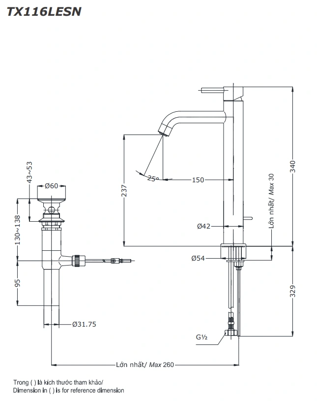
6. Bản vẽ kỹ thuật 2D vòi lavabo gật gù nóng lạnh TX116LESN

7. Kết luận
Với sự kết hợp giữa thiết kế tinh tế, chất liệu bền bỉ và công nghệ hiện đại, TOTO TX116LESN là lựa chọn hoàn hảo cho những ai mong muốn một không gian phòng tắm tiện nghi, sang trọng và thoải mái.



