TBG07305A – Vòi xả bồn tắm cao cấp, sang trọng và bền bỉ
1. Giới thiệu về TBG07305A
TBG07305A là mẫu vòi xả bồn tắm cao cấp được thiết kế tinh tế, hiện đại và bền chắc. Với khả năng xả nước mạnh mẽ, êm ái cùng chất liệu cao cấp, sản phẩm không chỉ mang đến sự tiện nghi mà còn góp phần nâng cao giá trị thẩm mỹ cho không gian phòng tắm. Đây là lựa chọn hoàn hảo cho hộ gia đình, khách sạn, resort hay spa.
2. Đặc điểm nổi bật
TBG07305A nổi bật với thiết kế sang trọng, bề mặt mạ crom sáng bóng, chống gỉ sét và hạn chế bám bẩn. Kiểu dáng hiện đại giúp sản phẩm dễ dàng kết hợp với nhiều loại bồn tắm và phong cách nội thất khác nhau.
Ngoài ra, sản phẩm được tối ưu để mang lại lưu lượng nước ổn định, mạnh mẽ nhưng êm ái, giúp tiết kiệm thời gian khi làm đầy bồn tắm và nâng cao trải nghiệm thư giãn cho người dùng.
3. Ưu điểm khi sử dụng TBG07305A
-
Xả nước nhanh chóng: Lưu lượng nước mạnh, đều, ổn định.
-
Chất liệu cao cấp: Bền chắc, chống oxy hóa và ăn mòn.
-
Thẩm mỹ tinh tế: Thiết kế sang trọng, phù hợp phòng tắm hiện đại.
-
Dễ dàng vệ sinh: Bề mặt sáng bóng, hạn chế bám bẩn.
-
Ứng dụng linh hoạt: Gia đình, khách sạn, resort, spa.
4. Ứng dụng thực tế
TBG07305A được ứng dụng rộng rãi trong các không gian phòng tắm cao cấp. Với gia đình, sản phẩm mang lại sự tiện nghi và nâng cao trải nghiệm thư giãn. Trong khách sạn, resort hoặc spa, TBG07305A không chỉ đảm bảo công năng mà còn tăng thêm sự sang trọng, tinh tế cho không gian.
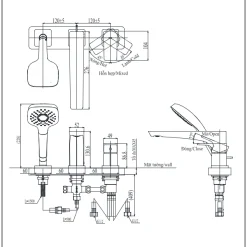
5. Thông số kỹ thuật cơ bản
-
Loại sản phẩm: Vòi xả bồn tắm.
-
Chất liệu: Đồng thau mạ crom hoặc inox 304 cao cấp.
-
Bề mặt: Sáng bóng, chống gỉ sét, chống bám bẩn.
-
Kiểu lắp đặt: Gắn tường hoặc gắn trực tiếp vào bồn.
-
Lưu lượng nước: Xả nhanh, mạnh, êm ái.
-
Phụ kiện kèm theo: Bộ ốc siết, gioăng cao su, dây kết nối.
6. Bản vẽ kỹ thuật 2D vòi xả bồn tắm nóng lạnh TBG07305A

7. Kết luận
TBG07305A không chỉ là thiết bị xả nước cho bồn tắm mà còn là chi tiết góp phần hoàn thiện sự sang trọng của phòng tắm. Với thiết kế tinh tế, chất liệu bền bỉ và tính năng tiện ích, sản phẩm mang lại sự tiện nghi và trải nghiệm thư giãn tối ưu cho người dùng.



