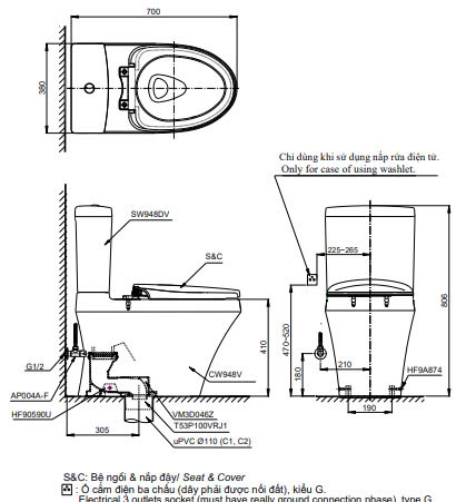
3. Thông số kỹ thuật bàn cầu hai khối CS948DT8XW
- Kích thước: 700D x W380 x H806 mm
- Màu sắc: Trắng
- Hệ thống xả: TORNADO
- Lượng nước xả: 4.5L/3L
- Thiết kế: Thân dài, thân kín
- Tâm xả: 305 mm
- Áp lực nước: 0.05 ~ 0.70 MPa
- Lưu ý: Bao gồm van dừng và bích nối sàn
4. Bản vẽ kỹ thuật bàn cầu hai khối CS948DT8XW




