1. Giới thiệu tổng quan
TOTO CS948CDW12XW là mẫu bồn cầu hai khối cao cấp, kết hợp nắp rửa điện tử Washlet S7 với thiết kế tinh tế, tính năng thông minh và hiệu quả sử dụng vượt trội. Sản phẩm mang đến trải nghiệm vệ sinh tối ưu cho không gian phòng tắm hiện đại, đồng thời hỗ trợ tiết kiệm nước và nâng tầm thẩm mỹ
2. Thiết kế & thông số kỹ thuật
-
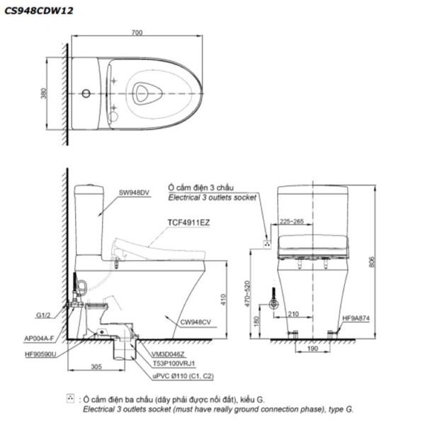
Kích thước tiêu chuẩn: 700 mm (dài) × 380 mm (rộng) × 806 mm (cao)
-
Màu sắc: Trắng tinh tế, dễ phối hợp với nhiều phong cách phòng tắm
-
Thiết kế thân dài, thân kín và vành kín (Rimless): Tăng tính thẩm mỹ, giảm bám bẩn và dễ dàng vệ sinh
-
Tâm xả: 305 mm – phù hợp hầu hết hệ thống ống hiện đại
-
Hệ thống xả Tornado: Xoáy mạnh, êm và hiệu quả với hai mức xả 4.5 L / 3.0 L
-
Áp lực nước hoạt động: 0.05–0.70 MPa; Nguồn điện: 220 V, 50/60 Hz
-
Xuất xứ: Thân và két sản xuất tại Việt Nam; nắp Washlet từ Malaysia
-
Bảo hành: Thông thường là 2 năm; một số đại lý có thể cung cấp đến 3 năm tùy chính sách bán hàng
3. Công nghệ nổi bật
3.1 Men sứ CEFIONTECT
Lớp men siêu mịn, chống bám bẩn và vi khuẩn. Nhờ độ hoàn thiện cao và khả năng “ưa nước”, mọi chất bẩn đều dễ dàng bị loại bỏ chỉ với một lần xả nước.
3.2 Thiết kế RIMLESS (vành kín)
Loại bỏ góc khuất và khe hở trên vành bàn cầu giúp ngăn tụ vi khuẩn và mảng bám hiệu quả, nâng cao khả năng vệ sinh.
3.3 Hệ thống xả Tornado Flush + Hệ thống tiết kiệm nước
Dòng xoáy 360° mạnh mẽ cuốn sạch mọi chất thải chỉ sau một lần xả, đồng thời hai nút xả 4.5 L / 3.0 L giúp tiết kiệm nước hiệu quả.
3.4 Nắp rửa Washlet S7 – Tiện nghi tối ưu
-
Tự động đóng/mở nắp khi người dùng xuất hiện hoặc rời đi
-
Ewater+: Phun sương tự động khử khuẩn lòng bàn cầu trước và vòi rửa sau khi sử dụng
-
Vòi rửa massage đa chức năng: Rửa trước, rửa sau, tạo bọt khí massage (Air-in Wonder-Wave), có thể điều chỉnh vị trí và áp lực nước
-
Sưởi ấm bệ ngồi, sấy khô, khử mùi tự động: Tạo cảm giác sạch sẽ, thoải mái mọi lúc sử dụng
-
Bảng điều khiển từ xa không dây với hai chế độ người dùng cá nhân hóa chức năng cá nhân
4. Bản vẽ kỹ thuật 2D bồn cầu CS948CDW12

5. Kết luận
TOTO CS948CDW12 là lựa chọn tối ưu cho phòng tắm hiện đại, kết hợp thẩm mỹ, tiện ích và công nghệ. Nếu bạn đang tìm kiếm một chiếc bồn cầu hai khối thông minh, tiết kiệm nước, dễ vệ sinh, với nắp Washlet S7 cao cấp, thì đây chính là đầu tư đáng giá.



