Lavabo TOTO LT505T – Thiết Kế Treo Tường Gọn Gàng, Tiện Dụng
Lavabo TOTO LT505T là mẫu chậu rửa treo tường nhỏ gọn, được thiết kế tối ưu cho không gian có diện tích hạn chế nhưng vẫn đảm bảo tính thẩm mỹ và độ bền cao. Với chất liệu sứ vệ sinh cao cấp và công nghệ men chống bám bẩn, LT505T mang đến sự tiện lợi và vệ sinh tối đa cho người dùng.
1. Thiết kế treo tường – Gọn gàng và tiết kiệm diện tích
LT505T có kiểu dáng lavabo treo tường (wall-hung basin) với thiết kế tối giản, gọn nhẹ. Đây là lựa chọn lý tưởng cho những phòng tắm có diện tích nhỏ, hoặc khu vực vệ sinh công cộng, giúp tiết kiệm không gian mà vẫn đảm bảo sự tiện nghi.
2. Chất liệu sứ cao cấp – Độ bền vượt trội
Sản phẩm được chế tác từ sứ vệ sinh Vitreous China chất lượng cao, nổi bật với khả năng chống ố vàng, chống nứt vỡ và giữ độ sáng bóng lâu dài. Với LT505T, người dùng hoàn toàn yên tâm về độ bền bỉ theo thời gian.
3. Công nghệ men CeFiONtect – Ngăn bám bẩn hiệu quả
Lavabo LT505T được ứng dụng công nghệ men CeFiONtect độc quyền của TOTO. Lớp men siêu nhẵn này giúp hạn chế tối đa tình trạng bám bẩn, vi khuẩn, đồng thời dễ dàng vệ sinh, giữ cho chậu luôn sạch sẽ và sáng đẹp.
4. Tính năng tiện lợi – An toàn khi sử dụng
Sản phẩm được trang bị lỗ thoát tràn để tránh tình trạng nước tràn ra ngoài. Thiết kế treo tường đơn giản, dễ lắp đặt và phù hợp cho nhiều kiểu không gian khác nhau, từ hộ gia đình đến văn phòng hoặc nhà hàng, khách sạn.
5. Thông số kỹ thuật
-
Mã sản phẩm: TOTO LT505T
-
Loại chậu: Lavabo treo tường (Wall-hung basin)
-
Kích thước: 400 × 320 × 175 mm (Dài × Rộng × Cao)
-
Chất liệu: Sứ vệ sinh cao cấp (Vitreous China)
-
Công nghệ: Men CeFiONtect chống bám bẩn
-
Tính năng: Lỗ thoát tràn an toàn
-
Màu sắc: Trắng trang nhã
-
Thương hiệu: TOTO – Nhật Bản
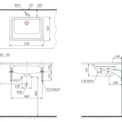
6. Bản vẽ kỹ thuật 2D lavabo âm bàn LT505T

7. Kết luận
Lavabo TOTO LT505T là lựa chọn lý tưởng cho không gian nhỏ gọn nhờ thiết kế treo tường tiết kiệm diện tích. Với chất liệu bền đẹp, công nghệ men chống bám bẩn và tính năng tiện ích, sản phẩm vừa đảm bảo tính thẩm mỹ vừa mang lại sự tiện dụng tối đa cho người dùng.


