Lavabo TOTO LHT328C – Giải Pháp Treo Tường Gọn Nhẹ và Hiện Đại
Lavabo TOTO LHT328C là mẫu chậu rửa treo tường thiết kế đơn giản, tiện lợi, thích hợp cho các không gian phòng tắm có diện tích vừa và nhỏ. Với chất liệu sứ vệ sinh cao cấp, công nghệ men chống bám bẩn và kiểu dáng gọn gàng, sản phẩm mang đến sự tiện nghi, sạch sẽ và nâng tầm thẩm mỹ cho không gian.
1. Thiết kế treo tường – Tiết kiệm diện tích
Lavabo LHT328C thuộc dòng treo tường (Wall-hung basin), giúp tối ưu không gian, đặc biệt là những phòng tắm nhỏ hẹp. Thiết kế hình vuông bo tròn tinh tế, đơn giản nhưng vẫn mang lại sự hiện đại và hài hòa.
2. Chất liệu sứ cao cấp – Bền bỉ theo thời gian
Sản phẩm được chế tác từ sứ vệ sinh Vitreous China, có độ cứng cao, chống ố vàng và duy trì vẻ sáng bóng lâu dài. Đây là vật liệu cao cấp, đảm bảo cả tính thẩm mỹ lẫn độ bền trong quá trình sử dụng.
3. Công nghệ men CeFiONtect – Chống bám bẩn hiệu quả
Lavabo LHT328C được phủ lớp men CeFiONtect độc quyền của TOTO. Nhờ bề mặt siêu mịn, chậu rửa hạn chế tối đa vi khuẩn, cặn bẩn bám dính, giúp dễ dàng vệ sinh và giữ cho sản phẩm luôn sạch sẽ, sáng bóng.
4. Tính năng tiện ích – An toàn và dễ dùng
Sản phẩm được tích hợp lỗ thoát tràn, giúp ngăn tình trạng nước tràn ra ngoài. Với kích thước gọn nhẹ, LHT328C phù hợp lắp đặt cho phòng tắm gia đình, khách sạn, nhà hàng hay khu vệ sinh công cộng.
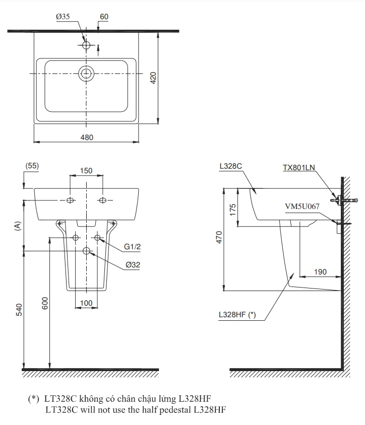
5. Thông số kỹ thuật
-
Mã sản phẩm: TOTO LHT328C
-
Loại chậu: Lavabo treo tường (Wall-hung Basin)
-
Kích thước: 500 × 440 × 190 mm (Dài × Rộng × Cao)
-
Chất liệu: Sứ vệ sinh cao cấp (Vitreous China)
-
Công nghệ: Men CeFiONtect chống bám bẩn
-
Tính năng: Lỗ thoát tràn an toàn
-
Màu sắc: Trắng tinh tế
-
Thương hiệu: TOTO – Nhật Bản
6. Bản vẽ kỹ thuật 2D lavabo treo tường LHT328C

7. Kết luận
Lavabo TOTO LHT328C là lựa chọn tối ưu cho phòng tắm nhỏ gọn, hiện đại và tiện nghi. Với thiết kế treo tường tiết kiệm diện tích, chất liệu sứ bền đẹp và công nghệ men chống bám bẩn, sản phẩm không chỉ đảm bảo sự tiện lợi khi sử dụng mà còn góp phần nâng cao tính thẩm mỹ cho không gian sống.



