Vòi Chậu Nóng Lạnh TOTO TLS03308B – Hiện Đại, Tiện Nghi
1. Giới thiệu sản phẩm
Vòi chậu nóng lạnh TOTO TLS03308B là dòng sản phẩm cao cấp, mang đến sự kết hợp hoàn hảo giữa thiết kế tinh tế và công nghệ tiên tiến. Với khả năng điều chỉnh nước nóng – lạnh tiện lợi, sản phẩm giúp nâng cao trải nghiệm sử dụng, đồng thời tạo điểm nhấn sang trọng cho phòng tắm.
2. Thiết kế tinh tế
TLS03308B được thiết kế theo phong cách tối giản nhưng vẫn toát lên vẻ sang trọng. Đường nét thanh thoát, bề mặt sáng bóng giúp sản phẩm dễ dàng hòa hợp với nhiều kiểu lavabo và phong cách nội thất phòng tắm hiện đại.
3. Chất liệu cao cấp
Sản phẩm được làm từ đồng thau nguyên chất có độ bền cao, đảm bảo an toàn cho sức khỏe. Bề mặt mạ Cr-Ni cao cấp sáng bóng, chống oxy hóa, chống gỉ sét và duy trì vẻ đẹp lâu dài.
4. Ưu điểm nổi bật
-
Thiết kế gọn gàng, sang trọng.
-
Tích hợp chế độ nóng lạnh tiện lợi.
-
Van đĩa sứ chống rò rỉ, bền bỉ.
-
Chất liệu đồng thau cao cấp, an toàn.
-
Bề mặt mạ Cr-Ni sáng bóng, dễ vệ sinh.
-
Công nghệ tiết kiệm nước thân thiện môi trường.
5. Thông số kỹ thuật
-
Mã sản phẩm: TOTO TLS03308B
-
Loại sản phẩm: Vòi chậu nóng lạnh
-
Chất liệu: Đồng thau nguyên chất
-
Lớp mạ: Cr-Ni sáng bóng
-
Áp lực nước: 0.05MPa ~ 0.75MPa
-
Van điều khiển: Van đĩa sứ chống rò rỉ
-
Màu sắc: Bạc sáng (Chrome)
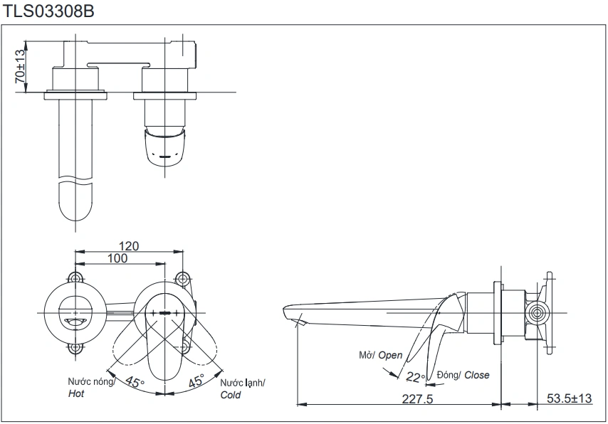
6. Bản vẽ kỹ thuật 2D vòi lavabo âm tường TLS03308B

7. Kết luận
Với thiết kế hiện đại, chất liệu cao cấp và công nghệ tiên tiến, TOTO TLS03308B không chỉ đáp ứng nhu cầu sử dụng hàng ngày mà còn góp phần tạo nên một không gian phòng tắm sang trọng, tiện nghi và đẳng cấp.



