Vòi Chậu Nóng Lạnh TOTO TLG10303V – Hiện Đại, Thanh Lịch
1. Giới thiệu sản phẩm
Vòi chậu nóng lạnh TOTO TLG10303V là dòng sản phẩm cao cấp mang phong cách hiện đại, phù hợp cho những không gian phòng tắm sang trọng. Với chất liệu bền bỉ, công nghệ tiên tiến và thiết kế tối giản, sản phẩm giúp mang đến trải nghiệm tiện nghi và nâng tầm giá trị không gian sống.
2. Thiết kế tinh tế
TLG10303V được thiết kế với kiểu dáng thanh thoát, đường nét gọn gàng và bề mặt sáng bóng. Sự tinh tế trong từng chi tiết tạo nên một sản phẩm vừa hiện đại vừa sang trọng, dễ dàng kết hợp với nhiều loại chậu rửa khác nhau.
3. Chất liệu cao cấp
Sản phẩm được sản xuất từ đồng thau nguyên chất, đảm bảo độ bền lâu dài và an toàn cho người sử dụng. Lớp mạ Cr-Ni cao cấp giúp bề mặt sáng bóng, chống gỉ sét, chống oxy hóa và dễ vệ sinh trong quá trình sử dụng.
4. Ưu điểm nổi bật
-
Thiết kế hiện đại, thanh lịch.
-
Tích hợp chức năng nóng – lạnh tiện lợi.
-
Van đĩa sứ chất lượng cao, chống rò rỉ.
-
Bề mặt mạ sáng bóng, chống ăn mòn.
-
Tiết kiệm nước, thân thiện môi trường.
5. Thông số kỹ thuật
-
Mã sản phẩm: TOTO TLG10303V
-
Loại sản phẩm: Vòi chậu nóng lạnh
-
Chất liệu: Đồng thau nguyên chất
-
Lớp mạ: Cr-Ni sáng bóng
-
Áp lực nước: 0.05MPa ~ 0.75MPa
-
Van điều khiển: Van đĩa sứ chống rò rỉ
-
Màu sắc: Bạc sáng (Chrome)
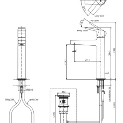
6. Bản vẽ kỹ thuật 2D vòi lavabo gật gù nóng lạnh TLG10303V

7. Kết luận
Với thiết kế tinh tế, chất liệu cao cấp và công năng hiện đại, TOTO TLG10303V là sự lựa chọn hoàn hảo cho những ai mong muốn một không gian phòng tắm vừa tiện nghi vừa sang trọng.



