TOTO WH171A – Két nước âm tường cao cấp cho phòng tắm hiện đại
1. Giới thiệu sản phẩm
TOTO WH171A là mẫu két nước âm tường cao cấp thuộc dòng sản phẩm của thương hiệu thiết bị vệ sinh TOTO Nhật Bản. Sản phẩm được thiết kế âm tường, giúp tiết kiệm không gian và mang đến sự tinh tế, gọn gàng cho phòng tắm. Với kiểu dáng hiện đại, cơ chế vận hành êm ái và độ bền vượt trội, két nước WH171A ngày càng được nhiều gia đình, khách sạn và công trình cao cấp tin dùng.
2. Thiết kế âm tường sang trọng – Tối ưu diện tích
Khác với két nước truyền thống, TOTO WH171A được lắp đặt ẩn trong tường, chỉ để lộ phần nút nhấn xả. Thiết kế này không chỉ giúp tiết kiệm diện tích mà còn mang lại sự gọn gàng và sang trọng cho không gian nhà vệ sinh. Đây là giải pháp lý tưởng cho những phòng tắm nhỏ hoặc các công trình hiện đại yêu cầu tính thẩm mỹ cao.
3. Vật liệu bền bỉ – Công nghệ Nhật Bản
WH171A được sản xuất từ vật liệu nhựa kỹ thuật cao cấp, có khả năng chống ẩm mốc, chống ăn mòn và chịu lực tốt. Sản phẩm được chế tạo theo tiêu chuẩn khắt khe của TOTO, đảm bảo độ bền lâu dài trong quá trình sử dụng. Ngoài ra, cơ chế xả của két nước hoạt động ổn định, ít hư hỏng, giúp người dùng an tâm khi lắp đặt cho gia đình hoặc công trình lớn.
4. Cơ chế xả mạnh mẽ – Tiết kiệm nước
Một trong những ưu điểm nổi bật của TOTO WH171A là công nghệ xả tiết kiệm nước. Hệ thống xả kép 2 chế độ (đại – tiểu) cho phép người dùng lựa chọn lượng nước phù hợp, vừa đảm bảo vệ sinh vừa tiết kiệm chi phí sinh hoạt. Lượng nước xả mạnh và đều, giúp làm sạch hiệu quả chỉ trong một lần nhấn.
5. Dễ dàng kết hợp với bồn cầu treo tường
Két nước WH171A được thiết kế chuyên dụng để kết hợp cùng bồn cầu treo tường TOTO. Sự đồng bộ này không chỉ nâng cao tính thẩm mỹ mà còn đảm bảo hiệu quả vận hành tối ưu. Với nhiều mẫu bồn cầu treo tường khác nhau, người dùng có thể dễ dàng lựa chọn phong cách phù hợp với không gian sống.
6. Ưu điểm nổi bật của TOTO WH171A
-
Tiết kiệm không gian: Giúp phòng tắm gọn gàng và sang trọng.
-
Thẩm mỹ cao: Lắp đặt âm tường, chỉ lộ nút nhấn tinh tế.
-
Tiết kiệm nước: Công nghệ xả kép hiệu quả, thân thiện môi trường.
-
Độ bền vượt trội: Vật liệu cao cấp, tuổi thọ lâu dài.
-
Dễ bảo trì: Cơ chế nắp hộp kỹ thuật thuận tiện cho việc kiểm tra và sửa chữa.
7. Ứng dụng rộng rãi
Sản phẩm WH171A không chỉ được sử dụng phổ biến trong gia đình mà còn xuất hiện nhiều tại:
-
Chung cư cao cấp, biệt thự hiện đại.
-
Khách sạn, resort, căn hộ dịch vụ.
-
Văn phòng, trung tâm thương mại.
-
Nhà hàng, quán café, khu nghỉ dưỡng.
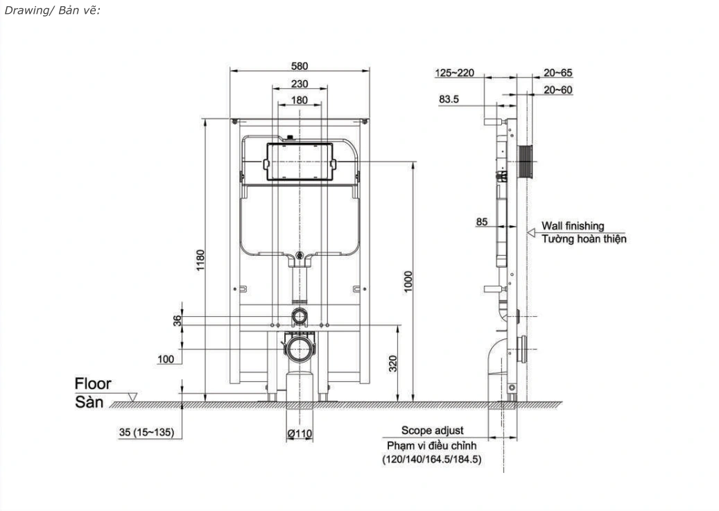
8. Bản vẽ kỹ thuật 2D két nước âm tường WH171A

9. Kết luận
Với thiết kế âm tường hiện đại, công nghệ xả tiết kiệm nước và độ bền vượt trội từ thương hiệu TOTO Nhật Bản, WH171A chính là lựa chọn hoàn hảo cho những ai muốn nâng cấp không gian nhà vệ sinh. Sản phẩm mang đến sự gọn gàng, tiện nghi, tiết kiệm chi phí và góp phần khẳng định phong cách sống đẳng cấp.



