WH172A – Két nước âm tường TOTO hiện đại, bền bỉ và thẩm mỹ vượt trội
1. Giới thiệu sản phẩm
WH172A là dòng két nước âm tường cao cấp của thương hiệu thiết bị vệ sinh TOTO Nhật Bản. Sản phẩm được thiết kế nhằm mang lại sự gọn gàng, sang trọng và tiện nghi cho không gian phòng tắm hiện đại. Với kiểu dáng tối giản, kết hợp cùng độ bền vượt trội và khả năng vận hành êm ái, két nước âm tường WH172A nhanh chóng trở thành lựa chọn hàng đầu cho nhiều công trình dân dụng và cao cấp như căn hộ, biệt thự, khách sạn, resort.
2. Đặc điểm nổi bật của WH172A
-
Thiết kế âm tường gọn gàng: Két nước được giấu sau tường, chỉ để lộ bồn cầu và bảng nút nhấn, mang đến không gian tinh tế, hiện đại.
-
Chất liệu cao cấp: Thân két được làm từ nhựa nguyên sinh và linh kiện chất lượng cao, đảm bảo chống rò rỉ, chống ẩm mốc và an toàn tuyệt đối.
-
Tiết kiệm diện tích: Giải pháp hoàn hảo cho phòng tắm nhỏ, giúp mở rộng không gian và tăng tính thẩm mỹ.
-
Cơ chế xả kép: Cho phép lựa chọn giữa xả tiểu và xả đại, giúp tiết kiệm nước tối đa.
-
Dễ dàng bảo trì: Thiết kế thông minh với cửa bảo trì phía trước, dễ tháo lắp và bảo dưỡng khi cần thiết.
-
Tương thích đa dạng: WH172A có thể kết hợp với nhiều mẫu bồn cầu treo tường khác nhau, linh hoạt cho từng nhu cầu sử dụng.
3. Ưu điểm khi sử dụng két nước âm tường WH172A
-
Tối ưu không gian sống: Giúp phòng tắm trở nên gọn gàng, thoáng đãng và sang trọng.
-
Độ bền vượt trội: Vật liệu cao cấp đảm bảo tuổi thọ sản phẩm lâu dài, giảm thiểu chi phí bảo trì.
-
Tiết kiệm nước hiệu quả: Công nghệ xả thông minh giảm đến 30-40% lượng nước tiêu thụ.
-
Hoạt động êm ái: Hệ thống xả vận hành nhẹ nhàng, không gây tiếng ồn.
-
Thẩm mỹ cao: Phù hợp với xu hướng thiết kế phòng tắm hiện đại, cao cấp.
4. Ứng dụng thực tế
Két nước âm tường TOTO WH172A được ứng dụng rộng rãi trong nhiều không gian:
-
Căn hộ chung cư cao cấp: Giúp tiết kiệm diện tích và tăng sự sang trọng.
-
Biệt thự, nhà phố: Tạo điểm nhấn đẳng cấp, đồng bộ với thiết kế nội thất.
-
Khách sạn, resort 4-5 sao: Mang lại trải nghiệm tiện nghi, hiện đại cho khách hàng.
-
Trung tâm thương mại, văn phòng: Tạo hình ảnh chuyên nghiệp và tinh tế.
5. Thông số kỹ thuật cơ bản (tham khảo)
-
Mã sản phẩm: WH172A
-
Loại: Két nước âm tường
-
Chất liệu: Nhựa cao cấp bền bỉ
-
Chức năng: Xả kép (tiểu – đại)
-
Khả năng tương thích: Lắp đặt với nhiều mẫu bồn cầu treo tường TOTO
-
Bảo hành chính hãng: 2 – 5 năm tùy linh kiện
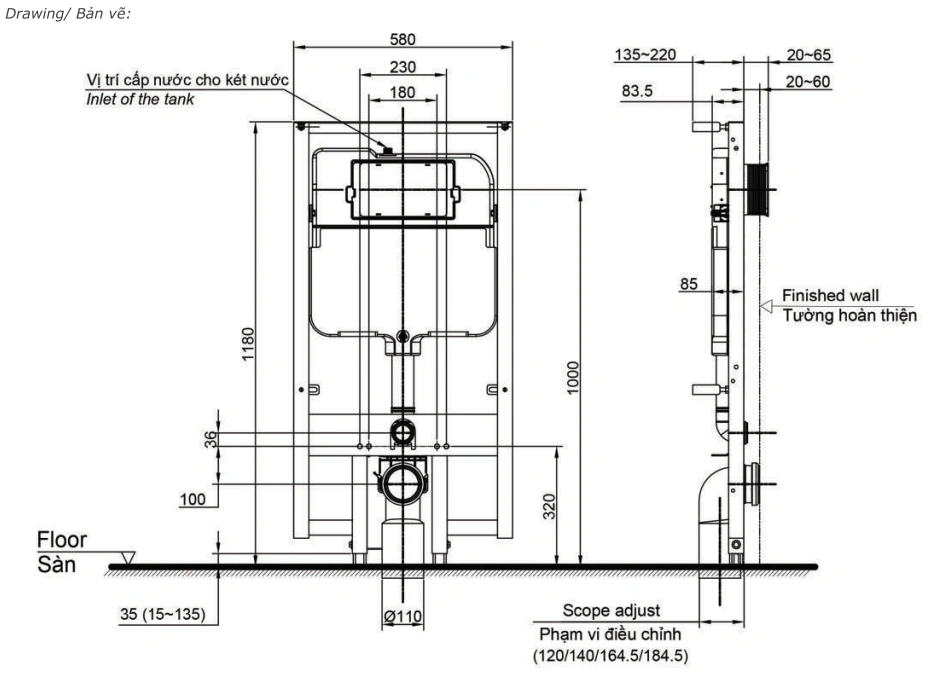
6. Bản vẽ kỹ thuật 2D két nước âm tường WH172A

7. Tại sao nên chọn WH172A của TOTO?
TOTO là thương hiệu thiết bị vệ sinh nổi tiếng toàn cầu với hơn 100 năm lịch sử phát triển. Mỗi sản phẩm đều được nghiên cứu và sản xuất dựa trên triết lý “Sạch – Tiện nghi – Bền bỉ – Thẩm mỹ”. WH172A không chỉ đáp ứng các tiêu chuẩn khắt khe của Nhật Bản mà còn mang lại sự an tâm tuyệt đối cho người dùng về chất lượng, độ an toàn và giá trị sử dụng lâu dài.
8. Kết luận
Két nước âm tường WH172A của TOTO chính là lựa chọn lý tưởng cho những ai muốn sở hữu một phòng tắm gọn gàng, sang trọng và tiện nghi. Với thiết kế tinh tế, công nghệ tiết kiệm nước và độ bền vượt trội, sản phẩm này không chỉ nâng tầm không gian sống mà còn góp phần xây dựng phong cách sống hiện đại và văn minh.



