Bộ Lavabo TOTO LW1506V/TL516GV – Thiết Kế Đặt Bàn Hiện Đại, Tiện Ích
Bộ lavabo TOTO LW1506V kết hợp với vòi TL516GV mang đến sự lựa chọn hoàn hảo cho không gian phòng tắm sang trọng. Với kiểu dáng đặt bàn chữ nhật gọn gàng, chất liệu sứ cao cấp, lớp men chống bám bẩn cùng vòi nóng lạnh hiện đại, đây là bộ sản phẩm đáp ứng cả nhu cầu sử dụng lẫn thẩm mỹ cho gia đình và công trình cao cấp.
1. Thiết kế đặt bàn – Tinh tế và hiện đại
Lavabo LW1506V có kiểu dáng chữ nhật vuông vắn, viền mỏng hiện đại, giúp không gian phòng tắm trở nên thanh lịch, gọn gàng. Khi kết hợp cùng vòi TL516GV dáng cong mềm mại, bộ sản phẩm vừa tối ưu công năng vừa tạo điểm nhấn tinh tế.
2. Chất liệu cao cấp – Bền bỉ với thời gian
Lavabo được chế tác từ sứ vệ sinh Vitreous China siêu bền, sáng bóng và chống nứt vỡ. Vòi TL516GV sử dụng đồng thau mạ crom-niken cao cấp, có khả năng chống ăn mòn, duy trì độ bền đẹp sau thời gian dài sử dụng.
3. Công nghệ men CeFiONtect – Giữ sạch tối ưu
Lavabo LW1506V được phủ lớp men CeFiONtect độc quyền của TOTO, giúp bề mặt siêu mịn, hạn chế tối đa vi khuẩn, bụi bẩn bám dính. Điều này giúp quá trình vệ sinh trở nên dễ dàng và giữ cho chậu luôn sáng đẹp.
4. Tính năng thông minh – Tiện ích vượt trội
Lavabo được thiết kế có lỗ thoát tràn, ngăn ngừa tình trạng nước tràn ra ngoài. Vòi TL516GV đi kèm công nghệ tiết kiệm nước Eco, dòng chảy êm ái, mang đến trải nghiệm sử dụng thoải mái và tiết kiệm chi phí.
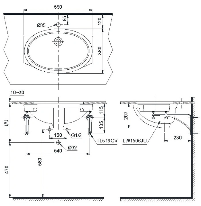
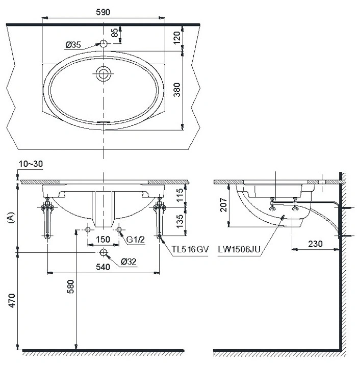
5. Thông số kỹ thuật
-
Mã sản phẩm: TOTO LW1506V/TL516GV
-
Loại chậu: Lavabo đặt bàn (Counter-top)
-
Kích thước lavabo: 500 × 400 × 150 mm (Dài × Rộng × Cao)
-
Chất liệu lavabo: Sứ vệ sinh cao cấp (Vitreous China)
-
Công nghệ: Men CeFiONtect chống bám bẩn
-
Loại vòi: TL516GV – Vòi nóng lạnh 1 lỗ
-
Chất liệu vòi: Đồng thau mạ Crom-Niken sáng bóng
-
Tính năng: Lỗ thoát tràn, tiết kiệm nước Eco
-
Màu sắc: Trắng (lavabo) – Bạc ánh kim (vòi)
-
Thương hiệu: TOTO – Nhật Bản
6. Bản vẽ kỹ thuật 2D lavabo âm bàn LW1506V/TL516GV

7. Kết luận
Bộ Lavabo TOTO LW1506V/TL516GV là giải pháp lý tưởng cho không gian phòng tắm hiện đại. Sự kết hợp giữa lavabo đặt bàn tinh tế, công nghệ men chống bám bẩn và vòi nóng lạnh cao cấp giúp sản phẩm vừa đẹp mắt vừa tiện dụng, xứng đáng trở thành lựa chọn hàng đầu cho gia đình và công trình cao cấp.



