TOTO Neorest RH – CS989PVT/TCF9768WZ: Đỉnh cao của bồn cầu thông minh Nhật Bản
TOTO Neorest RH CS989PVT/TCF9768WZ là mẫu bồn cầu thông minh cao cấp, biểu tượng cho phong cách sống tiện nghi, tinh tế và chuẩn xanh. Thuộc dòng Neorest RH, sản phẩm nổi bật với giải thưởng quốc tế như Red Dot Award 2018 và iF Design Award 2019, phản ánh ngôn ngữ thiết kế Nhật Bản sang trọng và hiện đại.
Thiết kế – thanh lịch & tối giản
Với kích thước chỉ 682 × 386 × 380 mm, Neorest RH mang đến vẻ ngoài nhỏ gọn, phù hợp nhiều không gian phòng tắm hiện đại. Thiết kế thân dài, thân kín (rimless) giúp hạn chế vi khuẩn và bám bẩn, tạo sự sang trọng, dễ lau chùi và vệ sinh hiệu quả. Màu trắng tinh khôi kết hợp bảng điều khiển màu bạc mạ kim loại càng tăng vẻ cao cấp của sản phẩm.
Cấu thành sản phẩm & xuất xứ rõ nguồn gốc
-
Thân cầu CS989PVT: sản xuất tại Nhật Bản, đảm bảo độ bền và chất lượng cao.
-
Nắp rửa điện tử Washlet TCF9768WZ: sản xuất tại Malaysia, tích hợp đầy đủ công nghệ tự động và vệ sinh hiện đại.
-
Đi kèm van dừng và bích nối sàn, phục vụ lắp đặt chính xác và an toàn.
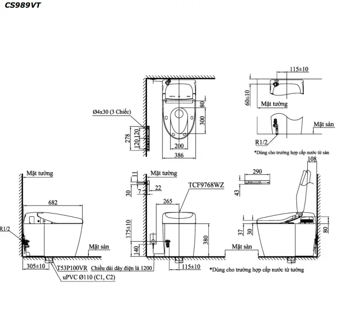
Bản vẽ kỹ thuật 2D bồn cầu CS989PVT/TCF9768WZ

Lưu ý khi sử dụng
Nơi lắp đặt cần đảm bảo thông gió để hạn chế nồm ẩm, ảnh hưởng tới hệ thống điện của bàn cầu
Tránh xịt nước trực tiếp và tẩy rửa bàn cầu với hóa chất có độ kiềm cao
Công nghệ thông minh – trải nghiệm vượt trội
Neorest RH CS989PVT/TCF9768WZ được tích hợp hệ thống 12+ công nghệ thông minh, mang lại trải nghiệm vệ sinh tiện nghi và sạch sâu:
-
Nắp đóng/mở tự động khi phát hiện chuyển động của người dùng
-
Xả tự động sau mỗi lần sử dụng – sạch sẽ hoàn toàn, không cần thao tác tay
-
Vòi rửa đa chức năng với chế độ massage, rửa trước – rửa sau và đưa bọt khí Air-in vào nước tạo hiệu quả vệ sinh sâu
-
Sưởi ấm bệ ngồi linh hoạt – dễ chịu quanh năm
-
Chế độ sấy khô bằng khí ấm, mang đến cảm giác tiện nghi sau mỗi lần sử dụng
-
Khử mùi tự động, dung hút mùi hiệu quả, cho không khí sạch trong phòng tắm
-
EWATER+ – công nghệ khử khuẩn bằng nước điện phân (phun tráng lòng cầu và bệ vòi rửa) tiêu diệt vi khuẩn đến 99.9%
-
Premist – phun sương lên lòng cầu trước khi sử dụng để ngăn bẩn bám dính
-
Men CeFiONtect siêu nhẵn – ngăn vi khuẩn, giữ sứ trắng sáng theo thời gian
-
Thiết kế rimless & thân kín – không vành khuất, lau chùi dễ dàng, hạn chế vi khuẩn tích tụ
-
Bảng điều khiển từ xa sang trọng – giúp tùy chỉnh cá nhân hóa cho từng thành viên trong gia đình



