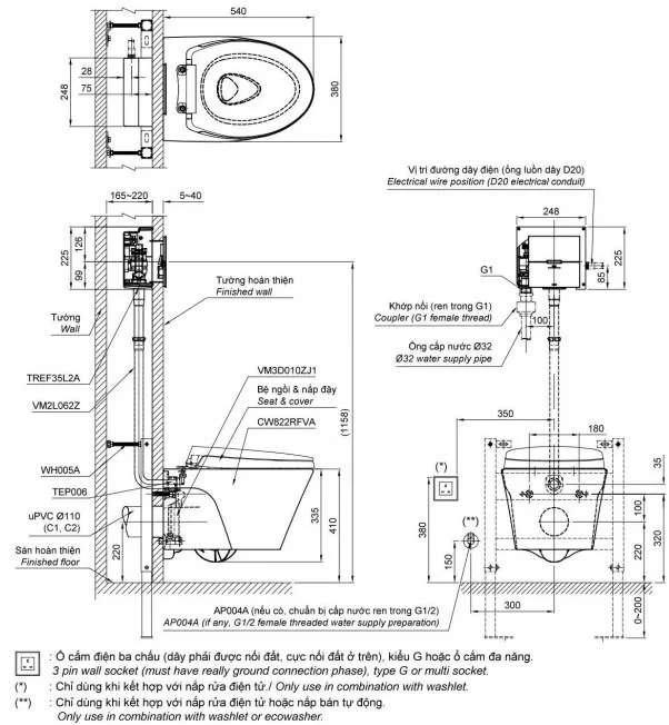
Bàn Cầu Treo Tường CW822RFVA1/TREF35L2A Kết Hợp Van Xả Cảm Ứng
32.433.000 ₫
Thiết kế: Thân dài, thân kín
Hệ thống xả: Xả xoáy Tornado
Loại xả: Xả tự động 4.5L/3L
Tâm xả: 220 mm
Kích thước: 540D x 380W x 335H mm
Nguồn điện: AC 220V
Màu sắc: Trắng
Áp lực nước: 0.1 ~ 0.75MPa
Van xả cảm ứng tự động: TREF35L2A
Nắp đóng êm: TC600VS



