TOTO MS885DT2 – Bồn cầu một khối nắp đóng êm: Trọn vẹn tiện nghi, sạch sẽ và phong cách
1. Thiết kế liền khối & thân dài – Hiện đại và vệ sinh dễ dàng
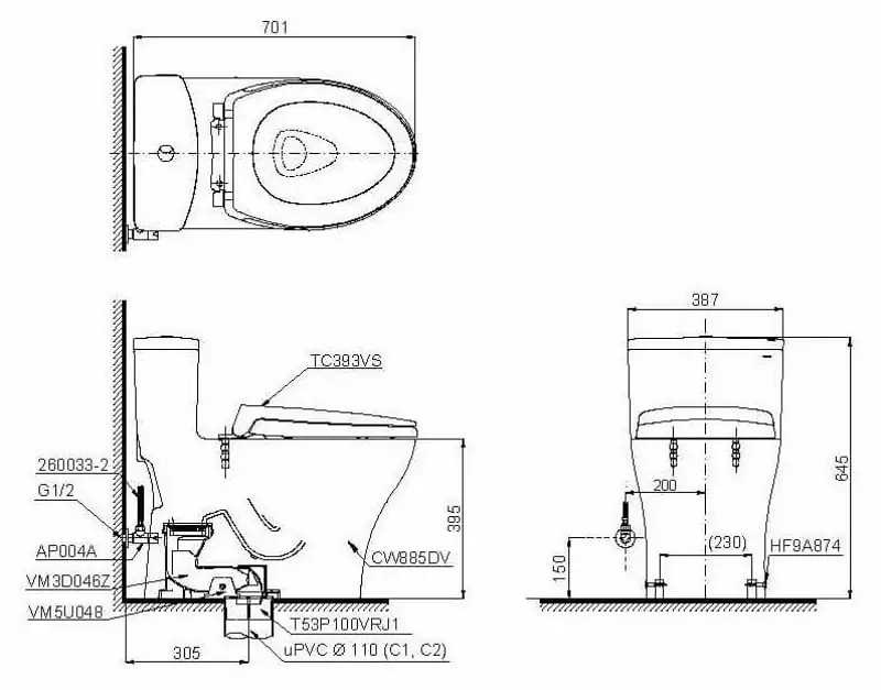
TOTO MS885DT2 sở hữu thiết kế một khối, thân dài và thân kín, không có khe hở, giúp ngăn chặn bụi bẩn và vi khuẩn tích tụ, dễ dàng vệ sinh hàng ngày. Kích thước tiêu chuẩn là 701 × 387 × 645 mm, màu trắng ngọc trai tinh tế phù hợp với mọi phong cách nội thất phòng tắm hiện đại.
2. Nắp đóng êm TC393VS – Sự khác biệt trong từng tiếng động
Một điểm nổi bật không thể bỏ qua là nắp đóng êm TC393VS đi kèm sản phẩm, mang lại trải nghiệm sử dụng nhẹ nhàng, không tiếng ồn khi đóng nắp—rất phù hợp cho những không gian cần sự yên tĩnh hoặc sử dụng vào ban đêm. Điều này giúp tăng tuổi thọ nắp và bảo vệ thân cầu tránh va đập.
3. Công nghệ xả Tornado – Sạch mạnh nhưng êm, tiết kiệm nước
MS885DT2 được trang bị hệ thống xả Tornado Siphon‑Jet hiện đại:
-
Hệ thống xả xoáy mạnh mẽ, cuốn trôi chất bẩn hoàn toàn và làm sạch toàn bộ lòng bồn.
-
Cơ chế xả nhấn đôi với 2 mức nước: 4.5 L (xả đại) và 3.0 L (xả tiểu), tiết kiệm hiệu quả đến 30–45% lượng nước so với bồn cầu truyền thống.
-
Hiệu suất xả cao nhưng vẫn êm ái, không gây tiếng động lớn.
4.CeFiONtect – Men sứ siêu trơn, chống bám bẩn vượt trội
Lòng bồn được phủ lớp CeFiONtect độc quyền giúp bề mặt siêu mịn, chống bám bẩn, vi khuẩn dễ dàng bị cuốn trôi chỉ với một lần xả:
-
Hạn chế tối đa vết ố và tích tụ cặn bẩn, giảm thời gian vệ sinh.
-
Duy trì bề mặt sáng bóng trong thời gian dài.
5. Bộ sản phẩm bao gồm:
- Thân cầu: C885
- Nắp đậy: TC393VS
- Thân sứ: CW885DV
- Nút trang trí: HF9A874
- Bộ cố định: VM5U048
- Ống nối sàn: VM3D046Z
- Bộ bích nối sàn: T53P100VRJ1
- Dây cấp: 260033-2
- Van dừng: AP004A
- Hướng dẫn sử dụng và lắp đặt: 1 quyển
6. Bản vẽ kỹ thuật 2D bồn cầu MS885DT2

7. Ưu điểm vượt trội
-
Thiết kế một khối và thân dài giúp tăng tính thẩm mỹ, vệ sinh dễ dàng.
-
Nắp đóng êm TC393VS cho trải nghiệm yên tĩnh, bảo vệ nắp và thân cầu.
-
Hệ thống xả Tornado mạnh mẽ – tiết kiệm nước, vận hành êm ái.
-
Men sứ CeFiONtect chống bám bẩn và vi khuẩn tuyệt đối.
-
Bề mặt nước lớn giúp ngăn mùi hiệu quả.
-
Có thể nâng cấp bằng nắp rửa Washlet (tùy chọn) để trải nghiệm thêm tiện nghi
8. Kết luận
TOTO MS885DT2 là lựa chọn lý tưởng cho những ai cần một bồn cầu một khối tiện nghi – tiết kiệm – êm ái – dễ vệ sinh. Với thiết kế thân dài, nắp đóng êm TC393VS, hệ thống xả Tornado và lớp men CeFiONtect, sản phẩm cân bằng tốt giữa chi phí hợp lý và trải nghiệm chất lượng cao—phù hợp cho căn hộ, nhà phố hoặc biệt thự hiện đại.



