Bồn cầu thông minh TOTO CW812REA/TCF47360GAA/WH172AAT/TCA546/MB174P#SS – Đỉnh cao tiện nghi và công nghệ Nhật Bản
Trong xu hướng hiện đại, phòng tắm không chỉ là nơi vệ sinh cá nhân, mà còn trở thành không gian thư giãn và trải nghiệm công nghệ tiện nghi. Bộ sản phẩm TOTO CW812REA/TCF47360GAA/WH172AAT/TCA546/MB174P#SS là sự kết hợp hoàn hảo giữa thiết kế tinh tế, chất liệu cao cấp và công nghệ thông minh hàng đầu từ Nhật Bản.
1. Thiết kế hiện đại, tinh giản
Bồn cầu CW812REA có kiểu dáng liền khối sang trọng, phù hợp nhiều phong cách nội thất từ cổ điển đến hiện đại. Màu trắng sáng đặc trưng cùng những đường nét mềm mại mang đến sự sạch sẽ, thanh thoát và đẳng cấp cho không gian phòng tắm.
Ngoài ra, thiết kế tối giản giúp dễ dàng vệ sinh, hạn chế khe kẽ bám bẩn, giữ bồn cầu luôn trong tình trạng sạch sẽ như mới.
2. Chất liệu cao cấp – Bền đẹp theo thời gian
Sản phẩm được chế tác từ sứ vệ sinh cao cấp, phủ lớp men CEFIONTECT độc quyền từ TOTO. Công nghệ men siêu mịn này giúp:
-
Ngăn ngừa vi khuẩn, cặn bẩn bám dính.
-
Hạn chế ố vàng, duy trì độ sáng bóng lâu dài.
-
Dễ lau chùi, tiết kiệm công sức vệ sinh.
3. Nắp rửa điện tử TCF47360GAA – Công nghệ S7 cao cấp
Điểm nhấn của bộ sản phẩm là nắp rửa điện tử TCF47360GAA (thuộc dòng WASHLET S7) với hàng loạt tính năng tiện nghi vượt trội:
-
Rửa trước/sau bằng vòi phun đa chế độ với nhiệt độ và áp lực nước điều chỉnh linh hoạt.
-
Chức năng sấy khô bằng khí ấm, mang lại sự khô thoáng và dễ chịu.
-
Khử mùi tự động ngay khi sử dụng, giữ không gian luôn tươi mát.
-
Nắp đóng mở tự động, cảm biến thông minh, tạo trải nghiệm tiện nghi mà không cần chạm tay.
-
Chức năng sưởi ấm bệ ngồi, lý tưởng cho mùa đông hoặc môi trường lạnh.
-
Bảng điều khiển hiện đại, dễ sử dụng cho mọi lứa tuổi.
4. Công nghệ xả Tornado Flush mạnh mẽ
Bồn cầu CW812REA tích hợp hệ thống xả Tornado Flush 2 cửa xoáy. Công nghệ này tạo ra dòng nước xoáy cực mạnh, cuốn trôi hoàn toàn chất thải mà vẫn tiết kiệm nước tối đa.
Với lượng nước xả chỉ 4.8 lít/lần, sản phẩm vừa đảm bảo hiệu quả, vừa thân thiện với môi trường.
5. Bộ phụ kiện đồng bộ, tối ưu vận hành
-
WH172AAT: Van cấp nước cao cấp, đảm bảo dòng chảy ổn định.
-
TCA546: Bộ phụ kiện kết nối chuẩn Nhật Bản, vận hành an toàn, bền bỉ.
-
MB174P#SS: Bộ phụ kiện bằng thép không gỉ, chống oxy hóa, giữ độ bền cao ngay trong môi trường ẩm ướt.
6. Ưu điểm nổi bật
-
Thiết kế sang trọng, tinh tế, nâng tầm không gian phòng tắm.
-
Nắp rửa điện tử thông minh S7, đem đến trải nghiệm vệ sinh toàn diện.
-
Công nghệ men CEFIONTECT chống bám bẩn, duy trì độ sạch sẽ dài lâu.
-
Hệ thống xả Tornado Flush tiết kiệm nước, vận hành mạnh mẽ.
-
Phụ kiện đồng bộ bằng thép không gỉ, đảm bảo độ bền và tính thẩm mỹ.
7. Thông số kỹ thuật
-
Mã sản phẩm: CW812REA/TCF47360GAA/WH172AAT/TCA546/MB174P#SS
-
Hệ thống xả: Tornado Flush
-
Lượng nước xả: 4.8L/lần
-
Chất liệu: Sứ cao cấp phủ men CEFIONTECT
-
Nắp rửa: Điện tử WASHLET TCF47360GAA (S7)
-
Phụ kiện: WH172AAT, TCA546, MB174P#SS
-
Nguồn điện: 220V
-
Màu sắc: Trắng
-
Xuất xứ: Nhật Bản
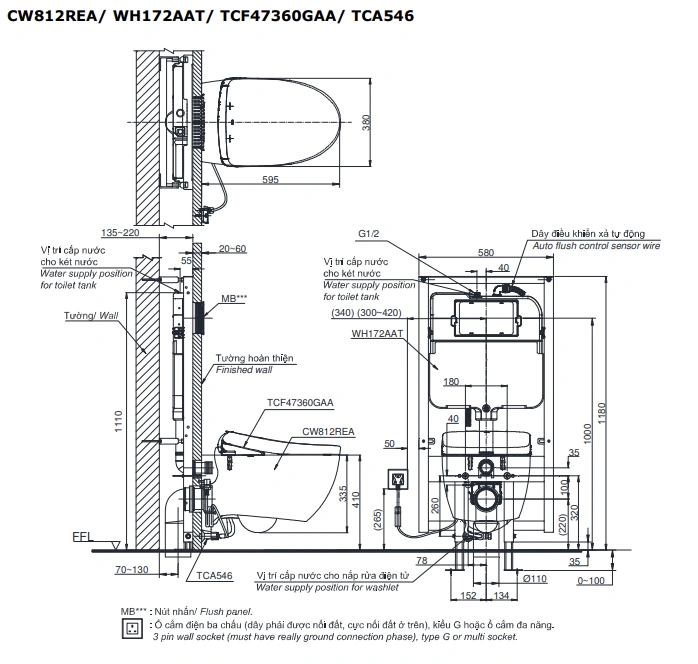
8. Bản vẽ kỹ thuật 2D bồn cầu treo tường CW812REA/TCF47360GAA/WH172AAT/TCA546/MB174P#SS

9. Kết luận
Bồn cầu thông minh TOTO CW812REA/TCF47360GAA/WH172AAT/TCA546/MB174P#SS là sự lựa chọn hoàn hảo cho những ai mong muốn sự tiện nghi, hiện đại và sang trọng trong không gian sống. Sản phẩm không chỉ giúp nâng cao trải nghiệm vệ sinh, mà còn thể hiện phong cách sống đẳng cấp và tinh tế của gia chủ.


