Bồn cầu thông minh TOTO CW822RA/TCF23410AAA/WH172A/MB170P#SS – Giải pháp vệ sinh tối ưu cho phòng tắm hiện đại
Trong xu hướng kiến trúc và nội thất ngày nay, tối giản, sang trọng và thông minh chính là những yếu tố được đặt lên hàng đầu. Bộ sản phẩm TOTO CW822RA/TCF23410AAA/WH172A/MB170P#SS ra đời nhằm đáp ứng trọn vẹn những tiêu chí đó. Đây là sự kết hợp hoàn hảo giữa bàn cầu treo tường cao cấp, két nước âm tường tiết kiệm diện tích, nắp rửa điện tử WASHLET hiện đại cùng mặt nhấn sang trọng.
1. Thiết kế sang trọng – Chuẩn phong cách Nhật Bản
-
Bồn cầu treo tường CW822RA được thiết kế gọn gàng, mang phong cách hiện đại, giúp tối ưu diện tích phòng tắm. Thiết kế treo tường vừa tiết kiệm không gian vừa tạo sự thanh thoát, dễ dàng vệ sinh sàn nhà.
-
Két âm tường WH172A được lắp đặt ẩn trong tường, mang đến sự gọn gàng và tính thẩm mỹ cao, phù hợp với cả những phòng tắm có diện tích hạn chế.
-
Mặt nhấn MB170P#SS được chế tác từ thép không gỉ cao cấp, bề mặt sáng bóng, dễ thao tác, bền bỉ theo thời gian.
2. Công nghệ vệ sinh vượt trội – Nâng tầm trải nghiệm
-
Nắp rửa điện tử TCF23410AAA (WASHLET C2) tích hợp các tính năng thông minh như rửa bằng nước ấm, sưởi ấm bệ ngồi, khử mùi tự động và chế độ sấy khô, mang lại trải nghiệm vệ sinh thoải mái, an toàn và tiện nghi.
-
Công nghệ xả Tornado Flush với lực xoáy kép mạnh mẽ, giúp loại bỏ vết bẩn triệt để mà vẫn tiết kiệm nước.
-
Lớp men sứ CEFIONTECT độc quyền của TOTO giữ cho bề mặt luôn trơn nhẵn, hạn chế vi khuẩn và cặn bẩn bám dính, giúp sản phẩm luôn sáng bóng như mới.
3. Bộ sản phẩm đồng bộ – Giải pháp toàn diện
Bộ CW822RA/TCF23410AAA/WH172A/MB170P#SS bao gồm:
-
Bàn cầu treo tường CW822RA – thiết kế tinh tế, phù hợp với mọi phong cách nội thất.
-
Két âm tường WH172A – tiết kiệm diện tích, dễ dàng lắp đặt và bảo trì.
-
Nắp rửa điện tử TCF23410AAA (WASHLET C2) – tiện nghi, thông minh với nhiều chế độ rửa khác nhau.
-
Mặt nhấn MB170P#SS – thiết kế tinh xảo, độ bền cao, dễ sử dụng.
4. Ưu điểm nổi bật
-
Tiết kiệm không gian nhờ thiết kế két âm tường và bàn cầu treo.
-
Vệ sinh tối ưu với công nghệ Tornado Flush và lớp men CEFIONTECT.
-
Tiện nghi hiện đại nhờ nắp rửa điện tử WASHLET thông minh.
-
Tính thẩm mỹ cao với thiết kế đồng bộ, sang trọng.
-
Bền bỉ và an toàn với chất liệu cao cấp và công nghệ tiên tiến.
5. Thông số kỹ thuật cơ bản
-
Mã sản phẩm: CW822RA/TCF23410AAA/WH172A/MB170P#SS
-
Loại bàn cầu: Treo tường
-
Công nghệ xả: Tornado Flush, 2 chế độ xả
-
Công nghệ men sứ: CEFIONTECT chống bám bẩn
-
Nắp rửa: Điện tử TCF23410AAA (WASHLET C2)
-
Két nước: WH172A âm tường
-
Mặt nhấn: MB170P#SS – thép không gỉ
-
Màu sắc: Trắng kết hợp thép không gỉ
-
Thương hiệu: TOTO – Nhật Bản
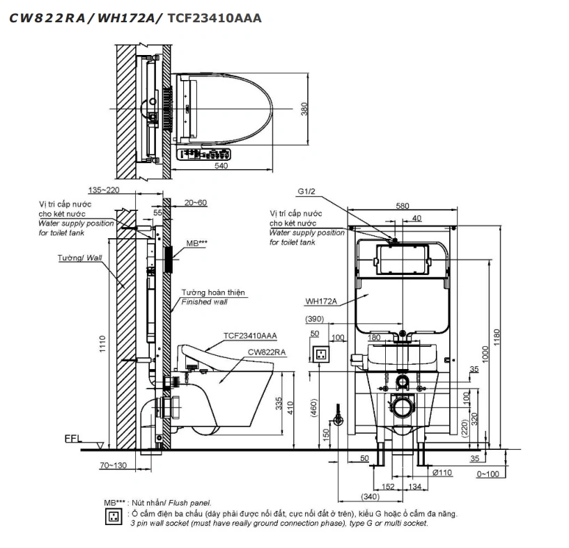
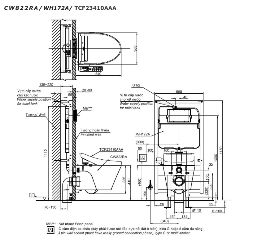
6. Bản vẽ kỹ thuật 2D bồn cầu treo tường CW822RA/TCF23410AAA/WH172A/MB170P#SS

7. Lý do nên chọn TOTO CW822RA/TCF23410AAA/WH172A/MB170P#SS
Bộ sản phẩm này không chỉ mang lại sự tiện nghi và an toàn cho sức khỏe, mà còn nâng tầm không gian sống với phong cách thiết kế tinh tế, sang trọng. Đây là lựa chọn hoàn hảo cho những ai muốn đầu tư vào một phòng tắm hiện đại, bền bỉ và đẳng cấp.



