Lavabo TOTO LT1515 – Thiết Kế Âm Bàn Thanh Lịch, Hiện Đại
Lavabo TOTO LT1515 là một trong những mẫu chậu rửa âm bàn nổi bật của TOTO, sở hữu thiết kế hình chữ nhật bo tròn mềm mại, chất liệu sứ cao cấp cùng công nghệ men chống bám bẩn tiên tiến. Sản phẩm mang lại sự tiện nghi và sang trọng cho không gian phòng tắm hiện đại.
1. Thiết kế âm bàn – Tinh tế và gọn gàng
Lavabo LT1515 thuộc dòng lavabo âm bàn (undercounter basin), được thiết kế để lắp đặt chìm dưới mặt bàn đá, tạo sự liền mạch và gọn gàng. Với kiểu dáng chữ nhật bo tròn nhẹ nhàng, sản phẩm phù hợp với nhiều phong cách nội thất từ tối giản đến sang trọng.
2. Chất liệu sứ cao cấp – Bền bỉ với thời gian
LT1515 được chế tác từ sứ vệ sinh cao cấp Vitreous China, có độ bền vượt trội, chịu lực tốt và khả năng chống ố vàng hiệu quả. Bề mặt sứ sáng bóng giúp lavabo giữ được vẻ đẹp bền lâu sau nhiều năm sử dụng.
3. Công nghệ men CeFiONtect – Giữ sạch tối ưu
Lavabo LT1515 được phủ lớp men CeFiONtect độc quyền của TOTO. Công nghệ này giúp bề mặt sứ trở nên siêu mịn, ngăn ngừa vi khuẩn và cặn bẩn bám dính, đồng thời giảm thiểu nhu cầu vệ sinh thường xuyên.
4. Tính năng tiện lợi – An toàn cho người dùng
Sản phẩm được thiết kế có lỗ thoát tràn, giúp ngăn tình trạng nước tràn ra ngoài, đảm bảo an toàn và tiện lợi. Kích thước tiêu chuẩn của lavabo dễ dàng kết hợp với nhiều mẫu vòi TOTO khác nhau, mang đến sự đồng bộ cho không gian phòng tắm.
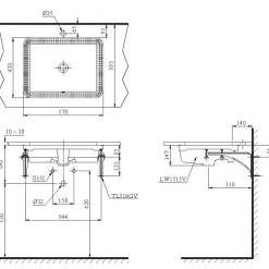
5. Thông số kỹ thuật
-
Mã sản phẩm: TOTO LT1515
-
Loại chậu: Lavabo âm bàn (Undercounter Basin)
-
Kích thước: 560 × 400 × 200 mm (Dài × Rộng × Cao)
-
Chất liệu: Sứ vệ sinh cao cấp (Vitreous China)
-
Công nghệ: Men CeFiONtect chống bám bẩn
-
Tính năng: Lỗ thoát tràn an toàn
-
Màu sắc: Trắng trang nhã
-
Thương hiệu: TOTO – Nhật Bản
6. Bản vẽ kỹ thuật 2D lavabo âm bàn LT1515

7. Kết luận
Lavabo TOTO LT1515 là sự lựa chọn lý tưởng cho những ai tìm kiếm sự gọn gàng, tiện dụng và bền đẹp. Với thiết kế âm bàn hiện đại, chất liệu cao cấp cùng công nghệ men chống bám bẩn, sản phẩm không chỉ đáp ứng nhu cầu sử dụng mà còn nâng tầm thẩm mỹ cho không gian phòng tắm.



