Lavabo TOTO LT546 – Lavabo Âm Bàn Trang Nhã, Công Nghệ Ưu Việt
Lavabo không chỉ là thiết bị cần thiết trong phòng tắm mà còn là chi tiết góp phần tạo dựng phong cách. Lavabo TOTO LT546 nổi bật với thiết kế âm bàn mềm mại, chất liệu sứ cao cấp và công nghệ tiên tiến – là lựa chọn lý tưởng cho không gian phòng tắm hiện đại, thanh lịch.
1. Thiết kế âm bàn – Tinh giản và tối ưu không gian
TOTO LT546 là mẫu lavabo âm bàn (undercounter lavatory) với thiết kế viền mỏng không nổi (rimless oval), phù hợp hoàn hảo khi lắp đặt chìm dưới mặt bàn đá. Nét chìm gọn giúp không gian phòng tắm trở nên liền mạch, gọn gàng hơn, đồng thời mang đến vẻ hiện đại tinh tế.
2. Kích thước hài hòa – Trang nhã & tiện lợi
Lavabo có kích thước bảng điều phối hợp lý: 19-11/16 inches (khoảng 500 mm) dài × 13-3/4 inches (khoảng 350 mm) rộng. Diện tích bồn rửa rộng rãi cho trải nghiệm sử dụng thoải mái, trong khi kích thước này vẫn giữ được sự tinh tế, phù hợp với nhiều loại bàn đá và phong cách thiết kế.
3. Chất liệu sứ và men CeFiONtect – Bền bỉ & dễ vệ sinh
Thân chậu được chế tạo từ sứ vệ sinh (Vitreous China) chất lượng cao, đảm bảo độ bền vượt trội và giữ form lâu dài theo thời gian. Điểm nổi bật nằm ở công nghệ men CeFiONtect, tạo bề mặt siêu mịn, chống bám bẩn và vi khuẩn, giúp việc vệ sinh trở nên nhanh chóng và dễ dàng, giữ lavabo luôn sáng bóng theo thời gian.
4. Tính năng an toàn – Thực dụng & linh hoạt
Lavabo LT546 trang bị lỗ xả tràn (rear overflow) để ngăn nước tràn khi người dùng vô tình quên tắt vòi. Bên cạnh đó, bộ phụ kiện đi kèm bao gồm hướng dẫn lắp đặt và ốc vít chuẩn, giúp quá trình thi công nhanh chóng, thuận tiện và chính xác.
5. Ưu điểm nổi bật
-
Thiết kế âm bàn tinh tế, tối giản, làm tôn lên vẻ trang nhã cho phòng tắm.
-
Kích thước hợp lý (≈ 500 mm × 350 mm) — linh hoạt trong bố trí và sử dụng.
-
Chất liệu sứ Vitreous China cho độ bền cao và giữ form lâu dài.
-
Men CeFiONtect — chống bám bẩn, dễ vệ sinh, duy trì độ sáng.
-
Trang bị lỗ thoát tràn an toàn.
-
Bao gồm phụ kiện lắp đặt đầy đủ.
-
Thương hiệu TOTO uy tín với chuẩn chất lượng toàn cầu.
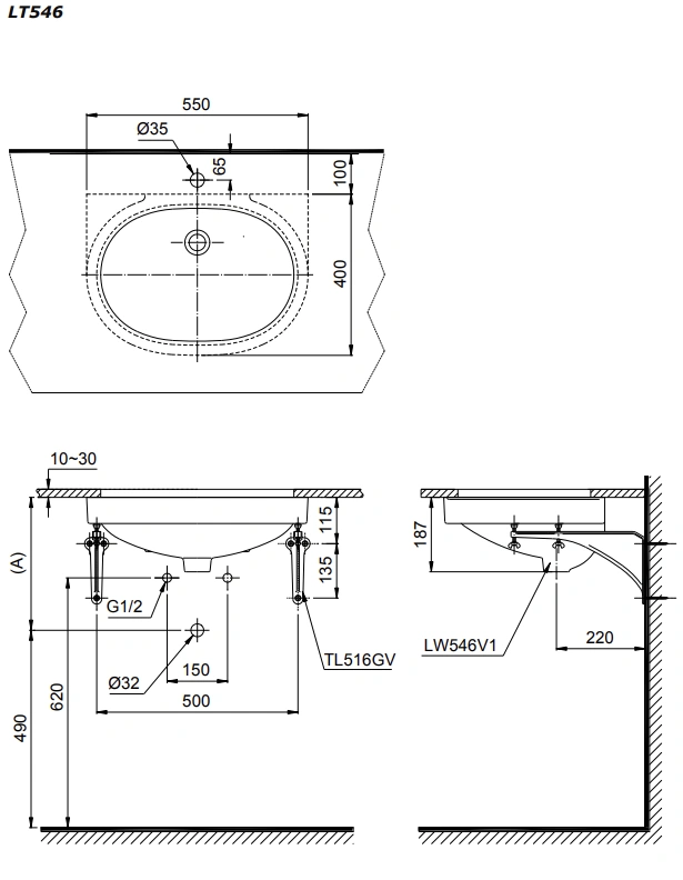
6. Bản vẽ kỹ thuật 2D lavabo âm bàn LT546

7. Kết luận
Lavabo TOTO LT546 là sự kết hợp hoàn hảo giữa thẩm mỹ tinh giản, công năng tiện dụng và chất lượng cao cấp. Với thiết kế âm bàn thanh lịch, công nghệ men hiện đại và độ bền cao, sản phẩm không chỉ nâng tầm phòng tắm mà còn tạo trải nghiệm sử dụng lâu dài, tiện nghi và dễ bảo trì. Nếu bạn đang tìm một chiếc lavabo vừa sang trọng, vừa thực tế và bền bỉ theo thời gian — thì TOTO LT546 chính là lựa chọn đáng cân nhắc.



