Lavabo TOTO LW896JW/F#SCR – Vẻ đẹp sang trọng trong từng chi tiết
1. Giới thiệu sản phẩm
Lavabo TOTO LW896JW/F#SCR là mẫu chậu rửa đặt bàn cao cấp đến từ thương hiệu TOTO Nhật Bản, nổi bật với gam màu SCR hiện đại, thanh lịch. Đây là sự lựa chọn hoàn hảo cho những không gian phòng tắm sang trọng, nơi mà sự tiện nghi đi đôi cùng tính thẩm mỹ cao.
2. Thiết kế sang trọng – Tôn vinh không gian phòng tắm
-
Kiểu dáng đặt bàn thời thượng: Mẫu lavabo LW896JW/F#SCR mang đến điểm nhấn ấn tượng, giúp phòng tắm trở nên tinh tế và nổi bật hơn.
-
Màu sắc SCR khác biệt: So với màu trắng truyền thống, màu SCR mang lại cảm giác cao cấp, dễ dàng kết hợp với nhiều loại gạch ốp, thiết bị vệ sinh khác.
-
Đường nét tinh xảo: Thiết kế bo tròn mềm mại, tạo nên sự hài hòa trong tổng thể không gian nội thất.
3. Công nghệ tiên tiến từ Nhật Bản
-
Công nghệ men sứ CEFIONTECT: Giúp bề mặt siêu mịn, hạn chế tối đa vi khuẩn, bụi bẩn bám dính.
-
Sứ cao cấp nung nhiệt độ cao: Tăng độ bền, chống nứt vỡ, chịu lực và chịu nhiệt tốt.
-
An toàn và thân thiện môi trường: Vật liệu được kiểm định chặt chẽ, không gây hại sức khỏe.
4. Ưu điểm nổi bật
-
Lòng chậu rộng: Tạo sự thoải mái khi rửa tay, rửa mặt, hạn chế tình trạng nước bắn ra ngoài.
-
Hệ thống thoát nước tối ưu: Nhanh chóng, chống ứ đọng.
-
Dễ dàng vệ sinh: Nhờ lớp men chống bám bẩn cao cấp.
-
Tính thẩm mỹ cao: Là điểm nhấn hoàn hảo cho những phòng tắm cao cấp, khách sạn, resort.
5. Thông số kỹ thuật
-
Mã sản phẩm: LW896JW/F#SCR
-
Loại: Lavabo đặt bàn
-
Màu sắc: SCR
-
Chất liệu: Sứ cao cấp phủ men chống bám bẩn CEFIONTECT
-
Thương hiệu: TOTO – Nhật Bản
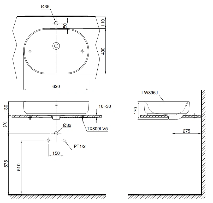
6. Bản vẽ kỹ thuật 2D lavabo Đặt Bàn LW896JW/F#SCR

7. Ứng dụng thực tế
Lavabo TOTO LW896JW/F#SCR phù hợp cho nhiều không gian:
-
Nhà phố, biệt thự hiện đại.
-
Khách sạn, resort cao cấp.
-
Spa, showroom và văn phòng sang trọng.
8. Kết luận
Với thiết kế tinh tế, màu sắc hiện đại và công nghệ sứ tiên tiến, Lavabo TOTO LW896JW/F#SCR không chỉ đáp ứng nhu cầu sử dụng hằng ngày mà còn nâng tầm không gian phòng tắm trở nên sang trọng và đẳng cấp. Đây là sản phẩm lý tưởng cho những khách hàng tìm kiếm sự khác biệt và hoàn mỹ.



