WASHLET C2/TCF23460AAA – Nắp rửa điện tử TOTO cao cấp cho trải nghiệm vệ sinh hoàn hảo
WASHLET C2/TCF23460AAA là một trong những mẫu nắp rửa điện tử nổi bật của thương hiệu TOTO, được thiết kế nhằm mang lại trải nghiệm vệ sinh cá nhân tối ưu, kết hợp hài hòa giữa công nghệ tiên tiến và sự tiện nghi sang trọng. Sản phẩm được đánh giá cao nhờ khả năng cải thiện đáng kể chất lượng sinh hoạt hàng ngày, đồng thời nâng tầm thẩm mỹ cho không gian phòng tắm.
1. Thiết kế tinh tế, phù hợp nhiều không gian phòng tắm
Nắp rửa điện tử WASHLET C2/TCF23460AAA sở hữu thiết kế bo tròn mềm mại, các đường nét tối giản nhưng tinh xảo, phù hợp với nhiều kiểu bồn cầu và phong cách nội thất khác nhau. Gam màu trắng trang nhã giúp sản phẩm dễ dàng hòa hợp với không gian phòng tắm hiện đại, tối giản hoặc tân cổ điển. Chất liệu nhựa cao cấp không chỉ bền bỉ theo thời gian mà còn dễ dàng vệ sinh, hạn chế bám bẩn và ố vàng.
2. Công nghệ rửa tiên tiến cho cảm giác sạch sẽ và thoải mái
Điểm nổi bật nhất của TCF23460AAA chính là công nghệ rửa bằng tia nước ấm với nhiều chế độ khác nhau, đáp ứng nhu cầu của từng người dùng. Vòi rửa đa chế độ cho phép điều chỉnh áp lực, nhiệt độ nước và vị trí phun, giúp làm sạch nhẹ nhàng nhưng hiệu quả. Ngoài ra, sản phẩm còn có chế độ rửa dành riêng cho phụ nữ, mang đến cảm giác dễ chịu và an toàn.
3. Tích hợp chức năng sấy khô và khử mùi tự động
Không chỉ dừng lại ở chức năng rửa, WASHLET C2 còn được trang bị hệ thống sấy khô bằng khí ấm, giúp người dùng cảm thấy thoải mái mà không cần dùng giấy vệ sinh. Công nghệ khử mùi tự động được kích hoạt ngay khi sử dụng, giữ cho không khí trong phòng tắm luôn dễ chịu và sạch sẽ. Đây là điểm cộng lớn giúp cải thiện đáng kể trải nghiệm vệ sinh hằng ngày.
4. Bảng điều khiển thân thiện và dễ sử dụng
Nắp rửa điện tử TOTO TCF23460AAA được thiết kế với bảng điều khiển gắn bên hông, các nút bấm có ký hiệu rõ ràng và dễ hiểu, giúp người lớn tuổi hay trẻ em đều có thể sử dụng thuận tiện. Mọi thao tác điều chỉnh đều trực quan, giúp bạn nhanh chóng làm quen và tận hưởng trọn vẹn các tính năng của sản phẩm.
5. Tiết kiệm năng lượng và thân thiện môi trường
TOTO luôn chú trọng đến hiệu quả tiết kiệm năng lượng, và mẫu WASHLET C2/TCF23460AAA cũng không ngoại lệ. Sản phẩm được trang bị chế độ tiết kiệm điện và nước, giúp giảm chi phí sinh hoạt mà vẫn đảm bảo hiệu quả sử dụng. Việc giảm thiểu dùng giấy vệ sinh cũng góp phần bảo vệ môi trường, phù hợp xu hướng sống xanh.
6. An toàn và vệ sinh tối đa
Vòi rửa của TCF23460AAA được trang bị cơ chế tự vệ sinh trước và sau mỗi lần sử dụng, đảm bảo luôn sạch sẽ và an toàn cho người dùng. Chất liệu vòi và bề mặt nắp rửa được xử lý kháng khuẩn, ngăn ngừa vi khuẩn và nấm mốc phát triển. Ngoài ra, hệ thống đóng/mở nắp êm ái giúp tăng tuổi thọ sản phẩm và giảm tiếng ồn.
7. Lợi ích khi sử dụng WASHLET C2/TCF23460AAA
-
Mang lại cảm giác sạch sẽ, thoải mái và tốt cho sức khỏe.
-
Tiện nghi và sang trọng, nâng tầm phòng tắm gia đình.
-
Tiết kiệm chi phí lâu dài nhờ giảm tiêu thụ giấy vệ sinh và năng lượng.
-
Thân thiện môi trường và an toàn cho mọi thành viên trong gia đình.
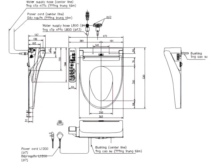
8. Bảng vẽ kỹ thuật 2D nắp rửa điện tử WASHLET C2/TCF23460AAA

9. Kết luận
Với sự kết hợp giữa thiết kế tinh tế, công nghệ hiện đại và tính năng tiện nghi, WASHLET C2/TCF23460AAA xứng đáng là lựa chọn hàng đầu cho những ai muốn nâng cấp trải nghiệm vệ sinh và chăm sóc sức khỏe. Đây không chỉ là một sản phẩm tiện ích, mà còn là bước tiến quan trọng hướng đến phong cách sống hiện đại, văn minh và bền vững.



