Vòi Chậu Nóng Lạnh TOTO TLG04310BB – Hiện Đại, Đẳng Cấp
1. Giới thiệu sản phẩm
Vòi chậu nóng lạnh TOTO TLG04310BB là dòng sản phẩm cao cấp với thiết kế hiện đại, tinh tế. Nhờ chức năng điều chỉnh nước nóng – lạnh linh hoạt, sản phẩm mang đến trải nghiệm tiện nghi, thoải mái và an toàn cho người sử dụng, đồng thời làm nổi bật không gian phòng tắm.
2. Thiết kế tinh tế
TLG04310BB được thiết kế với phong cách tối giản nhưng sang trọng, kết hợp màu đen mờ cá tính giúp tạo điểm nhấn mạnh mẽ cho không gian. Kiểu dáng gọn gàng, thanh thoát, phù hợp với nhiều loại chậu rửa và phong cách nội thất khác nhau.
3. Chất liệu cao cấp
Sản phẩm được chế tác từ đồng thau nguyên chất có độ bền cao, an toàn cho sức khỏe. Bề mặt hoàn thiện với lớp mạ Cr-Ni cao cấp phủ đen mờ (Matte Black) không chỉ mang lại vẻ đẹp sang trọng mà còn chống oxy hóa, chống gỉ sét và duy trì độ bền theo thời gian.
4. Ưu điểm nổi bật
-
Thiết kế sang trọng, hiện đại, màu sắc độc đáo.
-
Chức năng nóng – lạnh tiện lợi, dễ sử dụng.
-
Van đĩa sứ bền bỉ, chống rò rỉ hiệu quả.
-
Chất liệu đồng thau an toàn, chắc chắn.
-
Lớp mạ Cr-Ni phủ đen mờ chống ăn mòn.
-
Công nghệ tiết kiệm nước thân thiện với môi trường.
5. Thông số kỹ thuật
-
Mã sản phẩm: TOTO TLG04310BB
-
Loại sản phẩm: Vòi chậu nóng lạnh
-
Chất liệu: Đồng thau nguyên chất
-
Lớp mạ: Cr-Ni phủ đen mờ (Matte Black)
-
Áp lực nước: 0.05MPa ~ 0.75MPa
-
Van điều khiển: Van đĩa sứ chống rò rỉ
-
Màu sắc: Đen mờ (Matte Black)
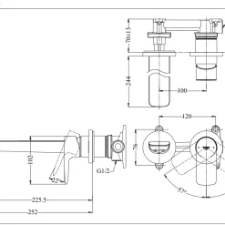
6. Bản vẽ kỹ thuật 2D vòi lavabo âm tường TLG04310BB

7. Kết luận
Với thiết kế hiện đại, chất liệu bền bỉ và màu sắc độc đáo, TOTO TLG04310BB là lựa chọn hoàn hảo để mang lại sự tiện nghi và phong cách đẳng cấp cho phòng tắm. Đây là giải pháp lý tưởng dành cho những ai yêu thích sự sang trọng và khác biệt.



