TBG10201B – Vòi xả bồn tắm cao cấp, sang trọng và bền bỉ
1. Giới thiệu về TBG10201B
TBG10201B là mẫu vòi xả bồn tắm cao cấp với thiết kế tinh tế, chất liệu bền chắc và khả năng vận hành ổn định. Sản phẩm được sản xuất theo công nghệ hiện đại, mang đến sự tiện lợi tối đa khi sử dụng và đồng thời tạo điểm nhấn sang trọng cho phòng tắm. Với lưu lượng nước mạnh mẽ và bề mặt sáng bóng, TBG10201B phù hợp cho cả gia đình lẫn không gian khách sạn, resort cao cấp.
2. Đặc điểm nổi bật
TBG10201B gây ấn tượng bởi thiết kế hiện đại, phù hợp nhiều kiểu dáng bồn tắm. Bề mặt được xử lý mạ crom sáng bóng, vừa thẩm mỹ vừa chống gỉ sét, đảm bảo độ bền vượt trội.
Khả năng xả nước nhanh, đều và êm ái giúp người dùng tiết kiệm thời gian, đồng thời mang lại sự thoải mái khi sử dụng. Đây là sản phẩm kết hợp hoàn hảo giữa công năng và tính thẩm mỹ.
3. Ưu điểm khi sử dụng TBG10201B
-
Lưu lượng nước mạnh mẽ: Giúp xả bồn nhanh chóng và ổn định.
-
Độ bền vượt trội: Chất liệu cao cấp, chống oxy hóa, chống ăn mòn.
-
Thẩm mỹ sang trọng: Thiết kế tinh tế, phù hợp nhiều không gian phòng tắm.
-
Dễ vệ sinh: Bề mặt sáng bóng, hạn chế bám bẩn.
-
Ứng dụng linh hoạt: Gia đình, khách sạn, resort, spa.
4. Ứng dụng thực tế
TBG10201B được ứng dụng phổ biến trong các phòng tắm gia đình và không gian cao cấp như khách sạn hay resort. Sản phẩm giúp việc xả nước bồn tắm trở nên nhanh chóng, tiện lợi và đồng thời nâng cao trải nghiệm thư giãn.
Nhờ thiết kế bền đẹp, TBG10201B cũng được nhiều đơn vị lắp đặt trong các khu nghỉ dưỡng và spa để mang lại sự sang trọng cho không gian.
5. Thông số kỹ thuật cơ bản
-
Loại sản phẩm: Vòi xả bồn tắm.
-
Chất liệu: Đồng thau mạ crom hoặc inox cao cấp.
-
Bề mặt: Sáng bóng, chống gỉ sét, chống bám bẩn.
-
Kiểu lắp đặt: Gắn tường hoặc gắn trực tiếp vào bồn tắm.
-
Lưu lượng nước: Xả nhanh, mạnh và êm ái.
-
Phụ kiện kèm theo: Bộ ốc siết, dây nối, gioăng cao su.
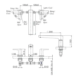
6. Bản vẽ kỹ thuật 2D vòi xả bồn tắm nóng lạnh TBG10201B

7. Kết luận
TBG10201B không chỉ đơn thuần là một chiếc vòi xả bồn tắm mà còn là chi tiết tạo điểm nhấn sang trọng cho không gian phòng tắm. Với thiết kế hiện đại, chất liệu cao cấp và tính năng xả nước nhanh chóng, sản phẩm mang đến sự tiện nghi và trải nghiệm thư giãn trọn vẹn.



