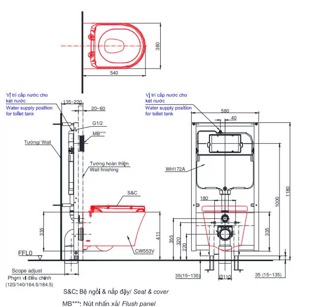
Bàn Cầu Treo Tường CW553 Kèm Nắp Rửa Điện Tử Dòng S2
50.254.000 ₫
Hệ thống xả: Tornado
Lượng xả: 4.5/3 L
Tâm xả: 220 mm (Thoát ngang)
Kiểu dáng: Thân chữ D, thân kín
Kích thước: 540D x 380W x 335H mm
Áp lực nước: 0.05 ~ 0.75 Mpa
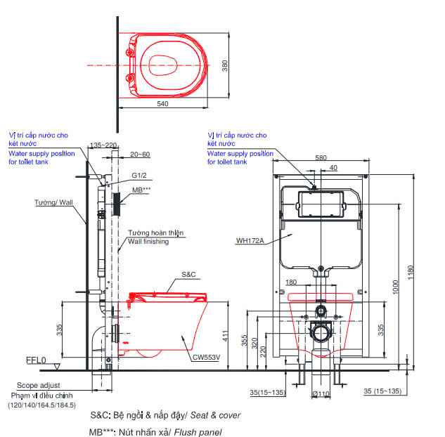
50.254.000 ₫
Hệ thống xả: Tornado
Lượng xả: 4.5/3 L
Tâm xả: 220 mm (Thoát ngang)
Kiểu dáng: Thân chữ D, thân kín
Kích thước: 540D x 380W x 335H mm
Áp lực nước: 0.05 ~ 0.75 Mpa