Bộ bàn cầu TOTO CW822RA/WH172A/TC385VS/MB170P#SS – Giải pháp vệ sinh hiện đại và sang trọng
TOTO CW822RA/WH172A/TC385VS/MB170P#SS là bộ sản phẩm bàn cầu treo tường cao cấp, kết hợp két âm tường và các phụ kiện đồng bộ, mang lại trải nghiệm sử dụng tiện nghi, tiết kiệm không gian và nâng tầm thẩm mỹ cho phòng tắm. Với thiết kế tinh tế, công nghệ tiên tiến và độ bền vượt trội, đây là lựa chọn lý tưởng cho những không gian sống hiện đại.
1. Thiết kế treo tường – Tối ưu không gian
-
Kiểu dáng treo tường sang trọng: Giúp tạo cảm giác rộng rãi, thông thoáng cho phòng tắm.
-
Bề mặt men CEFIONTECT: Lớp men siêu mịn độc quyền của TOTO, chống bám bẩn, dễ vệ sinh.
-
Gam màu trắng thanh lịch: Kết hợp hài hòa với nhiều phong cách nội thất khác nhau.
-
Két âm tường WH172A: Lắp đặt gọn gàng, che giấu hệ thống xả, giúp không gian tinh tế hơn.
2. Bộ sản phẩm đồng bộ – Tính năng vượt trội
Bộ sản phẩm bao gồm:
-
Bàn cầu treo tường CW822RA – Kết cấu chắc chắn, nhỏ gọn nhưng tiện nghi.
-
Nắp đóng êm TC385VS – Cơ chế giảm chấn, đóng nhẹ nhàng, không gây tiếng ồn.
-
Két âm tường WH172A – Hệ thống xả âm tường thông minh, dễ bảo trì.
-
Mặt nhấn MB170P#SS – Mặt nhấn đôi cao cấp, màu thép không gỉ, thẩm mỹ và bền bỉ.
3. Công nghệ tiên tiến – Xả sạch mạnh mẽ
-
Hệ thống xả Tornado Flush: Sử dụng dòng nước xoáy kép, cuốn trôi mọi vết bẩn chỉ trong một lần xả.
-
Tiết kiệm nước tối ưu: Chế độ xả đôi 3L/4.5L đáp ứng tiêu chuẩn tiết kiệm nước quốc tế.
-
Men CEFIONTECT: Ngăn vi khuẩn và chất bẩn bám dính, giúp duy trì độ sạch lâu dài.
-
Đóng êm tiện lợi: Nắp bồn cầu hạn chế tiếng ồn và tăng tuổi thọ.
4. Độ bền và an toàn vượt trội
-
Chịu tải trọng lớn: Phù hợp cho gia đình, khách sạn, khu nghỉ dưỡng và công trình công cộng.
-
Chất liệu cao cấp: Kháng ẩm, chống mài mòn, duy trì độ bền lâu dài.
-
Bảo trì dễ dàng: Hệ thống két âm tường thiết kế thuận tiện cho việc kiểm tra và sửa chữa.
-
An toàn cho sức khỏe: Sứ cao cấp, không chứa tạp chất gây hại.
5. Thông số kỹ thuật
-
Mã sản phẩm: CW822RA/WH172A/TC385VS/MB170P#SS
-
Kiểu dáng: Bàn cầu treo tường
-
Hệ thống xả: Tornado Flush
-
Chế độ xả: 2 chế độ (3L/4.5L)
-
Công nghệ men: CEFIONTECT chống bám bẩn
-
Màu sắc: Trắng (bàn cầu) + mặt nhấn thép không gỉ (#SS)
-
Xuất xứ: TOTO chính hãng – tiêu chuẩn Nhật Bản
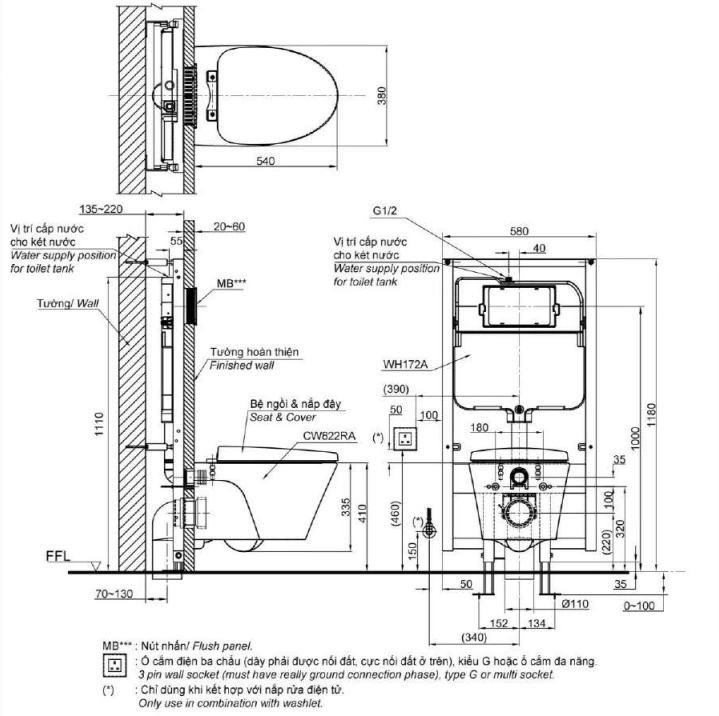
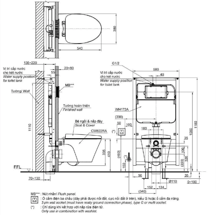
6. Bản vẽ kỹ thuật 2D bồn cầu treo tường CW822RA/WH172A/TC385VS/MB170P#SS

7. Ưu điểm nổi bật khi lựa chọn
-
Tiết kiệm diện tích: Lý tưởng cho không gian nhỏ.
-
Tăng tính thẩm mỹ: Mang lại vẻ đẹp hiện đại, tinh tế.
-
Tiết kiệm chi phí vận hành: Giảm lượng nước tiêu thụ, ít phải bảo dưỡng.
-
Trải nghiệm sử dụng tối ưu: Thiết kế tiện nghi, độ cao phù hợp, xả sạch mạnh mẽ.
8. Lý do nên sở hữu
Bộ TOTO CW822RA/WH172A/TC385VS/MB170P#SS là sự lựa chọn hoàn hảo cho những ai mong muốn một sản phẩm vừa đẹp, bền, tiện ích vừa giúp tiết kiệm không gian và nâng tầm đẳng cấp phòng tắm. Với thiết kế đồng bộ và công nghệ hiện đại, đây là thiết bị vệ sinh đáng đầu tư cho cả gia đình lẫn các công trình cao cấp.



