Vòi Lavabo Cảm Ứng TOTO TLE26008V
1. Giới thiệu sản phẩm
TOTO TLE26008V là mẫu vòi lavabo cảm ứng cao cấp, ứng dụng công nghệ tiên tiến giúp tự động cấp và ngắt nước khi sử dụng. Sản phẩm mang thiết kế hiện đại, sang trọng, phù hợp cho cả gia đình và công trình công cộng, vừa đảm bảo tính thẩm mỹ vừa nâng cao sự tiện nghi.
2. Đặc điểm nổi bật
-
Công nghệ cảm biến hồng ngoại thông minh, tự động xả nước.
-
Thiết kế tinh gọn, hiện đại, dễ kết hợp với nhiều loại lavabo.
-
Lớp mạ Nickel – Crom sáng bóng, chống bong tróc và gỉ sét.
-
Chất liệu đồng thau cao cấp, bền đẹp theo thời gian.
-
Vận hành bằng pin, an toàn, tiết kiệm điện năng.
3. Lợi ích khi sử dụng
-
Mang đến sự tiện nghi, không cần chạm tay khi sử dụng.
-
Giúp tiết kiệm nước tối đa, thân thiện với môi trường.
-
Đảm bảo vệ sinh, hạn chế tiếp xúc trực tiếp.
-
Độ bền cao, giảm thiểu chi phí vận hành và bảo dưỡng.
4. Ứng dụng
Thích hợp cho gia đình, khách sạn, resort, văn phòng, trung tâm thương mại và các công trình công cộng yêu cầu sự hiện đại, sang trọng và an toàn vệ sinh.
5. Thông số kỹ thuật
-
Mã sản phẩm: TLE26008V
-
Loại sản phẩm: Vòi lavabo cảm ứng
-
Chất liệu: Đồng thau cao cấp
-
Lớp mạ: Nickel – Crom bền đẹp
-
Nguồn điện: Pin (không cần điện trực tiếp)
-
Áp lực nước: 0.05MPa ~ 0.75MPa
-
Kiểu xả: Cảm biến hồng ngoại tự động
-
Thương hiệu: TOTO
-
Xuất xứ: Việt Nam
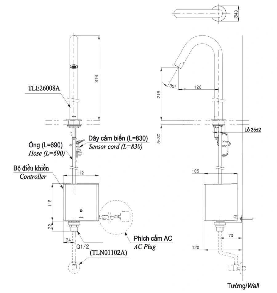
6. Bản vẽ kỹ thuật 2D vòi lavabo cảm ứng TLE26008V

7. Kết luận
Với thiết kế hiện đại, vận hành cảm ứng thông minh và chất liệu bền bỉ, TOTO TLE26008V là lựa chọn hoàn hảo cho phòng tắm gia đình và công trình công cộng. Sản phẩm vừa mang lại sự tiện nghi, vừa giúp tiết kiệm nước và khẳng định đẳng cấp không gian sống.



