Vòi Lavabo Nóng Lạnh Gắn Tường TOTO TLG07303V
1. Giới thiệu sản phẩm
Vòi lavabo nóng lạnh TOTO TLG07303V thuộc bộ sưu tập GE Series, được thiết kế hiện đại với đường nét mềm mại và sang trọng. Sản phẩm gắn tường tiện lợi, giúp tiết kiệm diện tích và mang đến sự tinh tế cho phòng tắm, đồng thời đảm bảo sự tiện nghi khi sử dụng hằng ngày.
2. Đặc điểm nổi bật
-
Thiết kế gắn tường tinh gọn, tối ưu không gian và tăng tính thẩm mỹ.
-
Đường nét thiết kế mềm mại, mang vẻ đẹp thanh lịch, sang trọng.
-
Tay gạt gật gù dễ thao tác, điều chỉnh nước nóng lạnh mượt mà.
-
Lớp mạ Nickel – Crom cao cấp, sáng bóng, chống bong tróc và gỉ sét.
-
Van đĩa sứ bền bỉ, chống rò rỉ, cho tuổi thọ sản phẩm lâu dài.
3. Lợi ích khi sử dụng
-
Mang lại sự tiện nghi và thoải mái trong sinh hoạt hằng ngày.
-
Giúp không gian phòng tắm gọn gàng, sang trọng và hiện đại.
-
Tiết kiệm nước hiệu quả, thân thiện môi trường.
-
Độ bền cao, hạn chế hư hỏng và chi phí bảo trì.
4. Ứng dụng
Phù hợp lắp đặt cho gia đình, căn hộ cao cấp, khách sạn, resort và các công trình hiện đại cần sự tinh tế và đẳng cấp.
5. Thông số kỹ thuật
-
Mã sản phẩm: TLG07303V
-
Loại sản phẩm: Vòi lavabo nóng lạnh gắn tường
-
Bộ sưu tập: GE Series
-
Chất liệu: Đồng thau cao cấp
-
Lớp mạ: Nickel – Crom bền bỉ
-
Áp lực nước: 0.05MPa ~ 0.75MPa
-
Van điều khiển: Van đĩa sứ chống rò rỉ
-
Thương hiệu: TOTO
-
Xuất xứ: Việt Nam
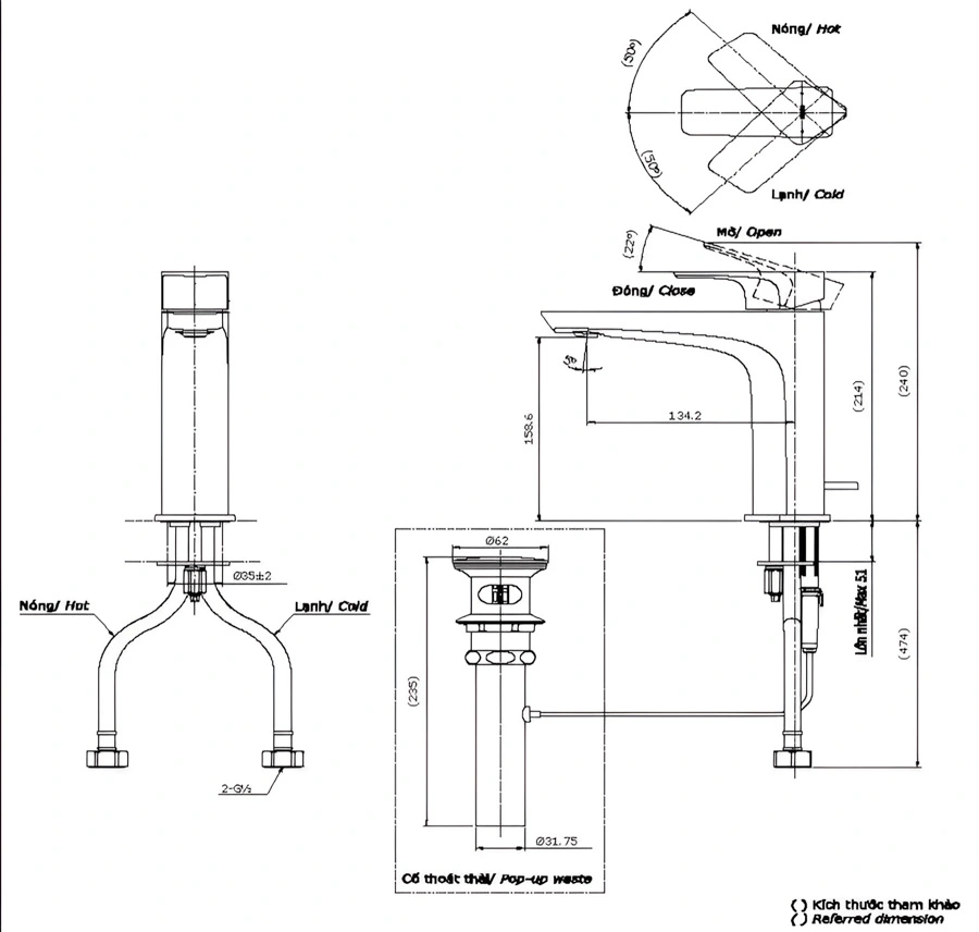
6. Bản vẽ kỹ thuật 2D vòi lavabo gật gù nóng lạnh TLG07303V

7. Kết luận
Với thiết kế gắn tường hiện đại, đường nét mềm mại của GE Series và chất liệu bền bỉ, TOTO TLG07303V là lựa chọn lý tưởng cho phòng tắm cao cấp. Sản phẩm không chỉ tiện nghi mà còn nâng tầm thẩm mỹ, mang đến sự sang trọng và đẳng cấp cho không gian sống.



